Maison neuve à
Garches (92380) Référence : AN2257768_3

Prix du projet : Maison avec Terrain

prix 1 170 000 €

  • 7 pièces
  • 4 chambres
  • Surface maison 160 m2

Garches : maison F7 (160 m²) à vendre
MAISON 7 PIÈCES NEUVE - PROCHE DE PARIS
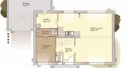
À vendre : au pied de la gare de Garches-Marnes-la-Coquette (Paris à 25 min avec le Transilien L), nous sommes ravis de vous proposer cette maison de 7 pièces de 160 m² et de 526 m² de terrain à Garches (92380). Elle se divise en quatre chambres, une cuisine et deux salles de bains.
Il s'agit d'une maison de 2 niveaux. Elle est neuve.
Des établissements scolaires de tous types se trouvent à moins de 10 minutes à pied. Côté transports en commun, il y a les lignes de RER A et C ainsi que 62 gares à moins de 10 minutes en voiture. On trouve un bassin de natation, trois tennis, une bibliothèque, trois boulangeries, des commerces, deux supermarchés, trois épiceries et deux boucheries-charcuteries dans les environs. Le marché Place Saint Louis a lieu tous les samedis matin.
Son prix de vente est de 1 170 000 €.
N'hésitez pas à prendre contact avec Anda NISTOR (07-81-86-62-91) pour plus de renseignements sur cette maison. Maisons Balency Dammartin-en-Goële vous accompagne à toutes les étapes de l'achat et dans toutes vos démarches.

Annonce proposée par un Agent Commercial Partenaire.

Mentions légales

Terrain proposé par un partenaire foncier selon disponibilités et autorisation de publicité au prix de 795 000 €. Hors droit d'enregistrement et frais de notaire. Maison proposée, avec un contrat de construction de maison individuelle, dans le cadre de la loi du 19/12/1990, au prix de 375 000 € (Hors branchements et raccordements, papiers peints, peintures, revêtement de sol dans les chambres, qui sont chiffrés dans les travaux qui restent à charge du client. Tarif modifiable sans préavis). Étiquette énergie : A. Différents modèles disponibles pour ce terrain. Assurances et garanties du constructeur comprises (RC professionnelle, décennale, dommage ouvrage).

Contactez l'agence de Dammartin-en-Goële

01 60 54 23 04

    * Champs obligatoires

    Vos informations sont traitées par HEXAOM et transmises à un conseiller commercial qui vous contactera afin de répondre à votre demande. Les plans et images présentés sur notre site sont la propriété d’HEXAOM et ne peuvent pas être reproduits sans son accord. Pour retrouver notre politique de protection des données personnelles et exercer vos droits conformément à la « loi informatique et liberté » cliquez-ici.