Maison neuve à
Garches (92380) Référence : AN2283760_3

Prix du projet : Maison avec Terrain

prix 1 385 000 €

  • 7 pièces
  • 5 chambres
  • Surface maison 125 m2

VENTE d'une maison F7 (125 m²) à Garches
PROCHE DE PARIS - MAISON 7 PIÈCES NEUVE
À deux pas du Transilien L (gare de Garches-Marnes-la-Coquette, 25 min de Paris), notre agence Maisons Balency Dammartin-en-Goële est ravie de vous proposer cette maison de 7 pièces de 125 m² à Garches (92380).
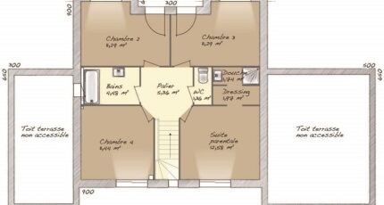
Cette maison comporte 2 niveaux. Elle se divise en cinq chambres, une cuisine et trois salles de bains. Cette maison est neuve.
Le terrain du bien s'étend sur 590 m².
Des écoles de tous types se trouvent à moins de 10 minutes à pied. Niveau transports, il y a deux lignes de RER (A et C) ainsi que 62 gares à moins de 10 minutes en voiture. On trouve un bassin de natation, trois tennis, une bibliothèque, trois boulangeries, des commerces, deux supermarchés, un bureau de poste et deux boucheries-charcuteries à quelques minutes à peine. Enfin, le marché Place Saint Louis anime le quartier chaque samedi matin.
Son prix de vente est de 1 385 000 €.
Contactez notre agence (Anda NISTOR : 07-81-86-62-91) pour tout renseignement sur cette maison. Donnez vie à vos projets immobiliers avec Maisons Balency Dammartin-en-Goële.

Annonce proposée par un Agent Commercial Partenaire.

Mentions légales

Terrain proposé par un partenaire foncier selon disponibilités et autorisation de publicité au prix de 850 000 €. Hors droit d'enregistrement et frais de notaire. Maison proposée, avec un contrat de construction de maison individuelle, dans le cadre de la loi du 19/12/1990, au prix de 535 000 € (Hors branchements et raccordements, papiers peints, peintures, revêtement de sol dans les chambres, qui sont chiffrés dans les travaux qui restent à charge du client. Tarif modifiable sans préavis). Étiquette énergie : A. Différents modèles disponibles pour ce terrain. Assurances et garanties du constructeur comprises (RC professionnelle, décennale, dommage ouvrage).

Contactez l'agence de Dammartin-en-Goële

01 60 54 23 04

    * Champs obligatoires

    Vos informations sont traitées par HEXAOM et transmises à un conseiller commercial qui vous contactera afin de répondre à votre demande. Les plans et images présentés sur notre site sont la propriété d’HEXAOM et ne peuvent pas être reproduits sans son accord. Pour retrouver notre politique de protection des données personnelles et exercer vos droits conformément à la « loi informatique et liberté » cliquez-ici.