Maison neuve à
Garches
(92380) Référence :
CM2286276_1
Prix du projet : Maison avec Terrain
prix 1 195 000 €
- 7 pièces
- 4 chambres
- Surface maison 160 m2
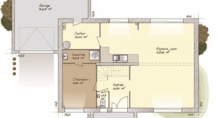
VENTE : maison T7 (160 m²) à Garches
PROCHE DE PARIS - MAISON 7 PIÈCES NEUVE
En vente : à deux pas du Transilien L (gare de Garches-Marnes-la-Coquette, 25 min de Paris), Maisons Balency Saint-Maur-des-Fossés vous propose cette maison de 7 pièces de 160 m² à Garches (92380).
Cette maison compte 2 niveaux. Son intérieur compte quatre chambres, une cuisine et deux salles de bains. La maison est neuve.
Le terrain du bien est de 503 m².
Il y a des établissements scolaires de tous niveaux (de la maternelle au lycée) à moins de 10 minutes à pied. Niveau transports en commun, on trouve deux lignes de RER (A et C) ainsi que 62 gares à moins de 10 minutes en voiture. Il y a un bassin de natation, trois tennis, une bibliothèque, trois boulangeries, des commerces, deux supermarchés, trois épiceries et deux boucheries-charcuteries à quelques minutes à peine. Enfin, le marché Place Saint Louis a lieu tous les samedis matin.
Son prix de vente est de 1 195 000 €.
Contactez Christophe MONTANIER (tél : 06-10-23-51-22) pour toute information sur cette maison, sur les modalités de vente ou sur les démarches à suivre.
Annonce proposée par un Agent Commercial Partenaire.
Mentions légales
Terrain proposé par un partenaire foncier selon disponibilités et autorisation de publicité au prix de 795 000 €. Hors droit d'enregistrement et frais de notaire. Maison proposée, avec un contrat de construction de maison individuelle, dans le cadre de la loi du 19/12/1990, au prix de 400 000 € (Hors branchements et raccordements, papiers peints, peintures, revêtement de sol dans les chambres, qui sont chiffrés dans les travaux qui restent à charge du client. Tarif modifiable sans préavis). Étiquette énergie : A. Différents modèles disponibles pour ce terrain. Assurances et garanties du constructeur comprises (RC professionnelle, décennale, dommage ouvrage).Agence Maisons Balency de Saint-Maur-des-Fossés (94100)
- Téléphone :
- 01 87 36 85 37
- Adressse :
- 12 avenue de la république
94100 Saint-Maur-des-Fossés, France
