Maison neuve à
Garges-lès-Gonesse
(95140) Référence :
CT2352732_1
Prix du projet : Maison avec Terrain
prix 448 000 €
- 6 pièces
- 5 chambres
- Surface maison 114 m2
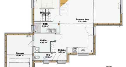
VENTE d'une maison T6 (114 m²) à Garges-lès-Gonesse
IDÉALEMENT SITUÉE - MAISON 6 PIÈCES NEUVE
En vente : à deux pas du RER D (station Garges-Sarcelles, 15 min de Paris), idéalement située dans Garges-lès-Gonesse (95140), nous vous proposons cette maison de 6 pièces de 114 m² et de 250 m² de terrain avec vue sur espace vert.
Cette maison possède 2 niveaux. Elle se divise en cinq chambres, une cuisine et deux salles de bains. Cette maison est neuve.
Le bien est situé dans un secteur recherché. On trouve tous les types d'établissements scolaires (maternelle, élémentaire et secondaire) à moins de 10 minutes à pied, tout comme deux structures d'accueil pour les enfants en bas âge. Niveau transports en commun, il y a la station de RER Garges-Sarcelles (ligne D) ainsi que la gare Garges-Sarcelles dans les environs. On trouve un bassin de natation, un tennis, des boulangeries, un supermarché, des commerces, trois supérettes et trois bureaux de poste à proximité de la maison.
Son prix de vente est de 448 000 €.
Contactez Christophe TALAMONI (06-49-55-08-27) pour plus d'informations sur la maison, sur les modalités de vente ou sur les démarches à suivre. Maisons Balency Baillet-en-France est là pour vous accompagner à toutes les étapes de votre projet.
Annonce proposée par un Agent Commercial Partenaire.
Mentions légales
Terrain proposé par un partenaire foncier selon disponibilités et autorisation de publicité au prix de 225 000 €. Hors droit d'enregistrement et frais de notaire. Terrain + Maison proposés au prix de 448 000 € (Hors branchements et raccordements, papiers peints, peintures, revêtement de sol dans les chambres. Tarif modifiable sans préavis). Etiquette énergie : A. Différents modèles disponibles pour ce terrain. Assurances et garanties du constructeur (RC professionnelle, décennale, dommage ouvrage, garantie de remboursement de l'acompte, livraison à prix et délai convenu) : https://www.maisons-balency.fr/informations-legales/. HEXAOM Services est enregistré auprès de l'ORIAS en tant que Courtier en financement, Niveau 1, sous le numéro 14001345.Agence Maisons Balency de Baillet-en-France (95560)
- Téléphone :
- 01 34 46 05 23
- Adressse :
- 81 rue de Paris
95560 Baillet-en-France, France
