Maison neuve à
Gazeran
(78125) Référence :
TD2248446_3
Prix du projet : Maison avec Terrain
prix 377 300 €
- 3 pièces
- 2 chambres
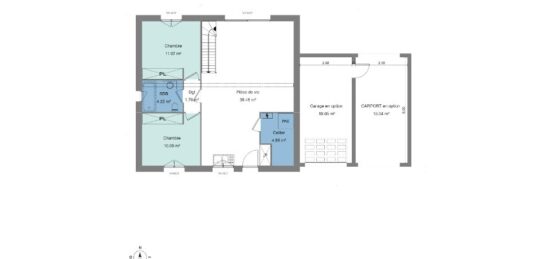
- Surface maison 71 m2
VENTE d'une maison de 3 pièces (71 m²) à Gazeran
IDÉALEMENT SITUÉE - MAISON 3 PIÈCES NEUVE
En vente : à quelques minutes du Transilien N (gare de Rambouillet, 35 min de Paris), nous vous présentons cette maison de 3 pièces de plain-pied de 71 m² idéalement située dans Gazeran (78125).
Son intérieur inclut deux chambres, une cuisine et une salle de bains. La maison est neuve.
Le terrain du bien est de 474 m².
Cette maison est située dans un quartier attractif. Une école primaire y est implantée. On trouve une bibliothèque, un tennis, deux commerces, une boulangerie et une épicerie à proximité du logement.
Son prix de vente est de 377 300 €.
N'hésitez pas à prendre contact avec Thibault DUTEURTRE (tél : 06-23-41-73-81) pour obtenir de plus amples renseignements sur la maison, sur les démarches à suivre ou sur les modalités de vente. Concrétisez vos projets immobiliers avec Maisons Balency Coignières.
Annonce proposée par un Agent Commercial Partenaire.
Mentions légales
Terrain proposé par un partenaire foncier selon disponibilités et autorisation de publicité au prix de 177 000 €. Hors droit d'enregistrement et frais de notaire. Maison proposée, avec un contrat de construction de maison individuelle, dans le cadre de la loi du 19/12/1990, au prix de 200 300 € (Hors branchements et raccordements, papiers peints, peintures, revêtement de sol dans les chambres, qui sont chiffrés dans les travaux qui restent à charge du client. Tarif modifiable sans préavis). Étiquette énergie : A. Différents modèles disponibles pour ce terrain. Assurances et garanties du constructeur comprises (RC professionnelle, décennale, dommage ouvrage).Agence Maisons Balency de Coignières (78310)
- Téléphone :
- 01 34 61 42 59
- Adressse :
- Domexpo Ouest
78310 Coignières, France
