Maison neuve à
Giberville
(14730) Référence :
SU2383754_3
Prix du projet : Maison avec Terrain
prix 221 900 €
- 4 pièces
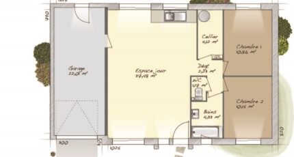
- 2 chambres
- Surface maison 70 m2
VENTE : maison T4 (70 m²) à Giberville
PROCHE DE CAEN - MAISON 4 PIÈCES NEUVE
À vendre : située à 15 km des plages de Merville Franceville et à 6 km de Caen, nous sommes ravis de vous présenter à Giberville (14730), cette maison de 4 pièces de plain-pied de 70 m². Elle propose deux chambres, une cuisine et une salle de bains.
Le terrain du bien s'étend sur 313 m².
La maison est neuve.
Le Collège Emile Zola se trouve à moins de 10 minutes à pied, tout comme une structure d'accueil pour les enfants en bas âge. Niveau transports en commun, il y a deux gares (Caen et Frénouville-Cagny) à moins de 10 minutes en voiture. La nationale N814 est accessible à 1 km. La commune est desservie par les bus de ville TWISTO. On trouve une bibliothèque, deux boulangeries, deux commerces, un supermarché, une boucherie-charcuterie et un bureau de poste dans les environs.
Son prix de vente est de 221 900 €.
Prenez contact avec Sophie UCENDO (06-35-39-35-17) pour plus de renseignements sur cette maison ou sur les démarches à suivre.
Mentions légales
Terrain proposé par un partenaire foncier selon disponibilités et autorisation de publicité au prix de 61 000 €. Hors droit d'enregistrement et frais de notaire. Terrain + Maison proposés au prix de 221 900 € (Hors branchements et raccordements, papiers peints, peintures, revêtement de sol dans les chambres. Tarif modifiable sans préavis). Etiquette énergie : A. Différents modèles disponibles pour ce terrain. Assurances et garanties du constructeur (RC professionnelle, décennale, dommage ouvrage, garantie de remboursement de l'acompte, livraison à prix et délai convenu) : https://www.maisons-balency.fr/informations-legales/. HEXAOM Services est enregistré auprès de l'ORIAS en tant que Courtier en financement, Niveau 1, sous le numéro 14001345.Agence Maisons Balency de Caen (14000)
- Téléphone :
- 02 31 50 38 15
- Adressse :
- 133, rue Saint Jean
14000 Caen, France
