Maison neuve à
Gignac (34150) Référence : HM2310572_8

Prix du projet : Maison avec Terrain

prix 430 000 €

  • 5 pièces
  • 3 chambres
  • Surface maison 105 m2

VENTE d'une maison T5 (105 m²) à Gignac
IDÉALEMENT SITUÉE - MAISON 5 PIÈCES NEUVE
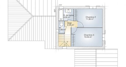
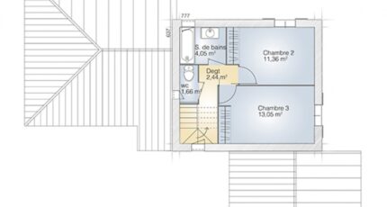
À vendre : localisée à 33 km de la mer Méditerranée et à deux pas de Montpellier, nous vous proposons cette maison de 5 pièces de 105 m² et de 500 m² de terrain idéalement située dans Gignac (34150). Son intérieur inclut trois chambres, une cuisine et une salle de bains.
Cette maison comporte 2 niveaux. Elle est neuve.
Cette maison se trouve dans un quartier attractif. Il y a le Collège Lo Trentanel, l'École Élémentaire Claude Daniel de Laurès et l'École Maternelle les Tourettes à moins de 10 minutes à pied et deux crèches. On trouve un accès à l'autoroute A750 à 1 km. On trouve deux tennis, des boulangeries, des commerces, un supermarché, quatre épiceries et un bureau de poste à quelques minutes à peine.
Elle est proposée à l'achat pour 430 000 €.
N'hésitez pas à prendre contact avec Hervé MALDONADO (06-72-60-44-42) pour tout renseignement sur la maison ou sur les modalités de vente. Maisons Balency Pézenas est là pour vous accompagner dans toutes vos démarches.

Mentions légales

Terrain proposé par un partenaire foncier selon disponibilités et autorisation de publicité au prix de 179 900 €. Hors droit d'enregistrement et frais de notaire. Terrain + Maison proposés au prix de 250 100 € (Hors branchements et raccordements, papiers peints, peintures, revêtement de sol dans les chambres. Tarif modifiable sans préavis). Etiquette énergie : A. Différents modèles disponibles pour ce terrain. Assurances et garanties du constructeur (RC professionnelle, décennale, dommage ouvrage, garantie de remboursement de l'acompte, livraison à prix et délai convenu) : https://www.maisons-balency.fr/informations-legales/. HEXAOM Services est enregistré auprès de l'ORIAS en tant que Courtier en financement, Niveau 1, sous le numéro 14001345.

Contactez l'agence de Pézenas

04 99 43 05 21

    * Champs obligatoires

    Vos informations sont traitées par HEXAOM et transmises à un conseiller commercial qui vous contactera afin de répondre à votre demande. Les plans et images présentés sur notre site sont la propriété d’HEXAOM et ne peuvent pas être reproduits sans son accord. Pour retrouver notre politique de protection des données personnelles et exercer vos droits conformément à la « loi informatique et liberté » cliquez-ici.