Maison neuve à
Gisors (27140) Référence : KD2322407_1

Prix du projet : Maison avec Terrain

prix 222 540 €

  • 5 pièces
  • 3 chambres
  • Surface maison 76 m2

VENTE : maison de 5 pièces (76 m²) à Gisors
MAISON 5 PIÈCES NEUVE - PROCHE DE BEAUVAIS
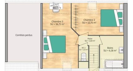
En vente : à 830 m du Transilien J (1 h de Paris), notre agence Maisons Balency Gravigny est heureuse de vous présenter à Gisors (27140), cette maison de 5 pièces de 76 m² et de 620 m² de terrain. Elle inclut trois chambres, une cuisine et une salle de bains.
Il s'agit d'une maison de 2 niveaux. Elle est neuve.
Il y a des écoles du primaire et du secondaire à moins de 10 minutes à pied. Côté transports, on trouve la gare Gisors à proximité. Il y a un tennis, une bibliothèque, des commerces, des boulangeries, trois supermarchés, des épiceries et un bureau de poste dans les environs. Enfin, 2 marchés animent les environs.
Elle est proposée à l'achat pour 222 540 €.
Contactez Karen DELELIS (07-49-97-72-93) pour tout renseignement sur cette maison, sur les modalités de vente ou sur les démarches à suivre. Concrétisez vos projets immobiliers avec Maisons Balency Gravigny.

Annonce proposée par un Agent Commercial Partenaire.

Mentions légales

Terrain proposé par un partenaire foncier selon disponibilités et autorisation de publicité au prix de 89 000 €. Hors droit d'enregistrement et frais de notaire. Terrain + Maison proposés au prix de 222 540 € (Hors branchements et raccordements, papiers peints, peintures, revêtement de sol dans les chambres. Tarif modifiable sans préavis). Etiquette énergie : A. Différents modèles disponibles pour ce terrain. Assurances et garanties du constructeur (RC professionnelle, décennale, dommage ouvrage, garantie de remboursement de l'acompte, livraison à prix et délai convenu) : https://www.maisons-balency.fr/informations-legales/. HEXAOM Services est enregistré auprès de l'ORIAS en tant que Courtier en financement, Niveau 1, sous le numéro 14001345.

Contactez l'agence de Gravigny

02 32 51 49 29

    * Champs obligatoires

    Vos informations sont traitées par HEXAOM et transmises à un conseiller commercial qui vous contactera afin de répondre à votre demande. Les plans et images présentés sur notre site sont la propriété d’HEXAOM et ne peuvent pas être reproduits sans son accord. Pour retrouver notre politique de protection des données personnelles et exercer vos droits conformément à la « loi informatique et liberté » cliquez-ici.