Maison neuve à
Goderville (76110) Référence : RC2273037_3

Prix du projet : Maison avec Terrain

prix 289 927 €

  • 6 pièces
  • 4 chambres
  • Surface maison 117 m2

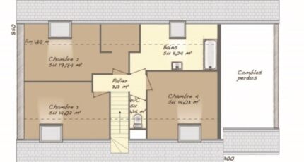
A construire : maison de 6 pièces (117 m²) à Goderville
IDÉALEMENT SITUÉE - MAISON 6 PIÈCES NEUVE
En vente : localisée à 13 km de la Manche et à 23 km du Havre, nous sommes heureux de vous proposer, idéalement située dans Goderville (76110), cette maison de 6 pièces de plain-pied de 117 m².
Conçue de plain-pied, elle compte quatre chambres, une cuisine et deux salles de bains. Cette maison est neuve.
Le terrain du bien s'étend sur 539 m².
La maison est située dans un secteur prisé. Trois établissements scolaires se trouvent à moins de 10 minutes à pied, tout comme, parmi lesquels le Collège André Gide et l'École Élémentaire Jean Savigny. Côté transports, il y a les gares Bréauté-Beuzeville, Virville-Manneville et Étainhus-Saint-Romain à moins de 10 minutes en voiture. On trouve un accès à l'autoroute A29 à 9 km. On trouve un bassin de natation, un tennis, des commerces, trois boulangeries, un supermarché, deux boucheries-charcuteries et un bureau de poste dans les environs.
Elle est proposée à l'achat pour 289 927 €.
Contactez Célia RENIER (07-62-90-87-77) pour toute question sur le bien ou sur les modalités de vente. Maisons Balency Boos vous accompagne dans tous vos projets immobiliers et dans toutes vos démarches.

Annonce proposée par un Agent Commercial Partenaire.

Mentions légales

Terrain proposé par un partenaire foncier selon disponibilités et autorisation de publicité au prix de 72 500 €. Hors droit d'enregistrement et frais de notaire. Maison proposée, avec un contrat de construction de maison individuelle, dans le cadre de la loi du 19/12/1990, au prix de 217 427 € (Hors branchements et raccordements, papiers peints, peintures, revêtement de sol dans les chambres, qui sont chiffrés dans les travaux qui restent à charge du client. Tarif modifiable sans préavis). Étiquette énergie : A. Différents modèles disponibles pour ce terrain. Assurances et garanties du constructeur comprises (RC professionnelle, décennale, dommage ouvrage).

Contactez l'agence de Boos

02 35 80 66 66

    * Champs obligatoires

    Vos informations sont traitées par HEXAOM et transmises à un conseiller commercial qui vous contactera afin de répondre à votre demande. Les plans et images présentés sur notre site sont la propriété d’HEXAOM et ne peuvent pas être reproduits sans son accord. Pour retrouver notre politique de protection des données personnelles et exercer vos droits conformément à la « loi informatique et liberté » cliquez-ici.