Maison neuve à
Goderville (76110) Référence : RC2273037_4

Prix du projet : Maison avec Terrain

prix 335 476 €

  • 6 pièces
  • 4 chambres
  • Surface maison 90 m2

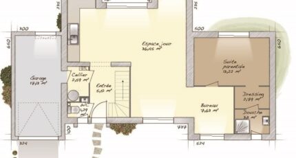
A construire : maison F6 (90 m²) à Goderville
IDÉALEMENT SITUÉE - MAISON 6 PIÈCES NEUVE
À vendre : située à 13 km de la Manche et à quelques kilomètres du Havre, idéalement située dans Goderville (76110), nous sommes heureux de vous présenter cette maison de 6 pièces de 90 m² et de 539 m² de terrain. Son intérieur propose quatre chambres, une cuisine et deux salles de bains.
Il s'agit d'une maison de 2 niveaux. Elle est neuve.
La maison se trouve dans un secteur prisé. Trois établissements scolaires sont implantés à moins de 10 minutes à pied, tout comme, parmi lesquels le Collège André Gide et l'École Élémentaire Jean Savigny. Côté transports, on trouve trois gares (Bréauté-Beuzeville, Virville-Manneville et Étainhus-Saint-Romain) à moins de 10 minutes en voiture. L'autoroute A29 est accessible à 9 km. Il y a un bassin de natation, un tennis, des commerces, trois boulangeries, un supermarché, deux boucheries-charcuteries et un bureau de poste dans les environs.
Elle est à vendre pour la somme de 335 476 €.
N'hésitez pas à prendre contact avec notre agence (RENIER Célia : 07-62-90-87-77) pour toute information sur la maison ou sur les modalités de vente. Maisons Balency Boos est là pour vous accompagner dans tous vos projets immobiliers.

Annonce proposée par un Agent Commercial Partenaire.

Mentions légales

Terrain proposé par un partenaire foncier selon disponibilités et autorisation de publicité au prix de 72 500 €. Hors droit d'enregistrement et frais de notaire. Maison proposée, avec un contrat de construction de maison individuelle, dans le cadre de la loi du 19/12/1990, au prix de 262 976 € (Hors branchements et raccordements, papiers peints, peintures, revêtement de sol dans les chambres, qui sont chiffrés dans les travaux qui restent à charge du client. Tarif modifiable sans préavis). Étiquette énergie : A. Différents modèles disponibles pour ce terrain. Assurances et garanties du constructeur comprises (RC professionnelle, décennale, dommage ouvrage).

Contactez l'agence de Boos

02 35 80 66 66

    * Champs obligatoires

    Vos informations sont traitées par HEXAOM et transmises à un conseiller commercial qui vous contactera afin de répondre à votre demande. Les plans et images présentés sur notre site sont la propriété d’HEXAOM et ne peuvent pas être reproduits sans son accord. Pour retrouver notre politique de protection des données personnelles et exercer vos droits conformément à la « loi informatique et liberté » cliquez-ici.