Maison neuve à
Gommecourt (78270) Référence : SH2393791_1

Prix du projet : Maison avec Terrain

prix 325 000 €

  • 6 pièces
  • 4 chambres
  • Surface maison 117 m2

VENTE : maison F6 (117 m²) à Gommecourt
QUARTIER RECHERCHÉ - MAISON 6 PIÈCES NEUVE
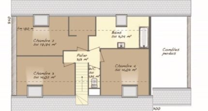
À vendre : proche du Transilien J (gare de Vernon-Giverny, 1 h de Paris), ayez le coup de coeur pour cette maison de 6 pièces de plain-pied de 117 m² dans un quartier recherché de Gommecourt (78270). Son intérieur offre quatre chambres, une cuisine et deux salles de bains.
Le terrain de la propriété est de 1 000 m².
Cette maison est neuve.
Cette maison se trouve dans un secteur attractif. On y trouve une école primaire. Niveau transports en commun, il y a trois gares (Bonnières-sur-Seine, Vernon-Giverny et Rosny-sur-Seine) à moins de 10 minutes en voiture. On trouve une bibliothèque à quelques minutes du logement.
Elle est à vendre pour la somme de 325 000 €.
Contactez Sébastien HOTTE (tél : 06-15-58-21-40) pour obtenir de plus amples renseignements sur la maison, sur les démarches à suivre ou sur les modalités de vente. Maisons Balency Louviers est là pour vous accompagner à toutes les étapes de votre projet.

Annonce proposée par un Agent Commercial Partenaire.

Mentions légales

Terrain proposé par un partenaire foncier selon disponibilités et autorisation de publicité au prix de 105 000 €. Hors droit d'enregistrement et frais de notaire. Terrain + Maison proposés au prix de 325 000 € (Hors branchements et raccordements, papiers peints, peintures, revêtement de sol dans les chambres. Tarif modifiable sans préavis). Etiquette énergie : A. Différents modèles disponibles pour ce terrain. Assurances et garanties du constructeur (RC professionnelle, décennale, dommage ouvrage, garantie de remboursement de l'acompte, livraison à prix et délai convenu) : https://www.maisons-balency.fr/informations-legales/. HEXAOM Services est enregistré auprès de l'ORIAS en tant que Courtier en financement, Niveau 1, sous le numéro 14001345.

Contactez l'agence de Louviers

02 32 51 43 53

    * Champs obligatoires

    Vos informations sont traitées par HEXAOM et transmises à un conseiller commercial qui vous contactera afin de répondre à votre demande. Les plans et images présentés sur notre site sont la propriété d’HEXAOM et ne peuvent pas être reproduits sans son accord. Pour retrouver notre politique de protection des données personnelles et exercer vos droits conformément à la « loi informatique et liberté » cliquez-ici.