Maison neuve à
Gournay-en-Bray (76220) Référence : SEMA9044_9

Prix du projet : Maison avec Terrain

prix 150 000 €

  • 4 pièces
  • 2 chambres
  • Surface maison 50 m2

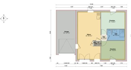
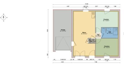
VENTE d'une maison de 4 pièces (49 m²) à Gournay-en-Bray
PROCHE DE BEAUVAIS - MAISON 4 PIÈCES NEUVE
En vente : à deux pas de Beauvais, notre agence Maisons Balency Boos est ravie de vous proposer à Gournay-en-Bray (76220), cette maison de 4 pièces de plain-pied de 49 m².
Elle dispose de deux chambres, d'une cuisine et d'une salle de bains. La maison est neuve.
Le terrain du bien est de 500 m².
Plusieurs écoles (maternelle, élémentaire, primaire et collège) sont implantées à moins de 10 minutes à pied. Niveau transports, il y a la gare Gournay-Ferrières à moins de 10 minutes en voiture. On trouve une bibliothèque, un tennis, un bassin de natation, des commerces, des boulangeries, quatre supermarchés, deux supérettes et un bureau de poste à quelques minutes à peine. Le marché Place Nationale anime le quartier.
Son prix de vente est de 150 000 €.
Contactez Sébastien MASSON (06-23-38-14-17) pour obtenir de plus amples informations sur cette maison, sur les modalités de vente ou sur les démarches à suivre. Maisons Balency Boos est là pour vous accompagner à toutes les étapes de votre projet.

Annonce proposée par un Agent Commercial Partenaire.

Mentions légales

Terrain proposé par un partenaire foncier selon disponibilités et autorisation de publicité au prix de 43 000 €. Hors droit d'enregistrement et frais de notaire. Terrain + Maison proposés au prix de 107 000 € (Hors branchements et raccordements, papiers peints, peintures, revêtement de sol dans les chambres. Tarif modifiable sans préavis). Etiquette énergie : A. Différents modèles disponibles pour ce terrain. Assurances et garanties du constructeur (RC professionnelle, décennale, dommage ouvrage, garantie de remboursement de l'acompte, livraison à prix et délai convenu) : https://www.maisons-balency.fr/informations-legales/. HEXAOM Services est enregistré auprès de l'ORIAS en tant que Courtier en financement, Niveau 1, sous le numéro 14001345.

Contactez l'agence de Boos

02 35 80 66 66

    * Champs obligatoires

    Vos informations sont traitées par HEXAOM et transmises à un conseiller commercial qui vous contactera afin de répondre à votre demande. Les plans et images présentés sur notre site sont la propriété d’HEXAOM et ne peuvent pas être reproduits sans son accord. Pour retrouver notre politique de protection des données personnelles et exercer vos droits conformément à la « loi informatique et liberté » cliquez-ici.