Maison neuve à
Gouvieux
(60270) Référence :
AF2344717_1
Prix du projet : Maison avec Terrain
prix 330 000 €
- 5 pièces
- 3 chambres
- Surface maison 90 m2
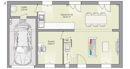
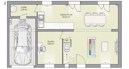
Maison F5 (90 m²) en vente à Gouvieux
PROCHE DE SAINT-DENIS - MAISON 5 PIÈCES NEUVE
À côté de la station Chantilly-Gouvieux du RER D (45 min de Paris), Maisons Balency Pierrelaye vous propose en vente à Gouvieux (60270), cette maison de 5 pièces de 90 m². Son intérieur offre trois chambres, une cuisine et une salle de bains.
Le terrain du bien est de 405 m².
C'est une maison de 2 niveaux. Elle est neuve.
Le Lycée Agricole Privé Association de Formation et d'Action Sociale des Écuries de Courses de Gouvieux et l'École Maternelle Georges Pompidou sont implantés à moins de 10 minutes à pied. Niveau transports, il y a la ligne de RER D (Chantilly-Gouvieux) ainsi que 13 gares à moins de 10 minutes en voiture. Les autoroutes A1 et A16 et les nationales N104, N324 et N184 sont accessibles à moins de 16 km et Saint-Denis se situe à 29 km. On trouve un bassin de natation, une bibliothèque et deux commerces à quelques minutes.
Elle est proposée à l'achat pour 350 000 €.
N'hésitez pas à prendre contact avec Antoine FLIPPE (tél : 07-82-59-37-75) pour toute information sur la maison ou sur les modalités de vente. Maisons Balency Pierrelaye est là pour vous accompagner à toutes les étapes de votre projet.
Annonce proposée par un Agent Commercial Partenaire.
Mentions légales
Terrain proposé par un partenaire foncier selon disponibilités et autorisation de publicité au prix de 135 000 €. Hors droit d'enregistrement et frais de notaire. Terrain + Maison proposés au prix de 330 000 € (Hors branchements et raccordements, papiers peints, peintures, revêtement de sol dans les chambres. Tarif modifiable sans préavis). Etiquette énergie : A. Différents modèles disponibles pour ce terrain. Assurances et garanties du constructeur (RC professionnelle, décennale, dommage ouvrage, garantie de remboursement de l'acompte, livraison à prix et délai convenu) : https://www.maisons-balency.fr/informations-legales/. HEXAOM Services est enregistré auprès de l'ORIAS en tant que Courtier en financement, Niveau 1, sous le numéro 14001345.Agence Maisons Balency de Baillet-en-France (95560)
- Téléphone :
- 01 34 46 05 23
- Adressse :
- 81 rue de Paris
95560 Baillet-en-France, France
