Maison neuve à
Gouy (76520) Référence : MJ2253520_1

Prix du projet : Maison avec Terrain

prix 479 500 €

  • 7 pièces
  • 5 chambres
  • Surface maison 170 m2

Gouy : maison T7 (170 m²) à vendre
QUARTIER RECHERCHÉ - MAISON 7 PIÈCES NEUVE
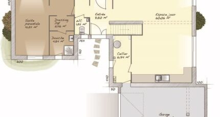
À vendre à quelques kilomètres de Rouen, construite dans un quartier convoité de Gouy (76520), votre agence Maisons Balency Boos est heureuse de vous proposer cette maison de 7 pièces de plain-pied de 170 m².
Conçue de plain-pied, elle comporte cinq chambres, une cuisine et trois salles de bains. Cette maison est neuve.
Le terrain du bien est de 1 400 m².
La maison est située dans un secteur attractif. On trouve l'École Primaire Préhistoval à moins de 10 minutes à pied. Côté transports, il y a cinq gares à moins de 10 minutes en voiture. Les autoroutes A13 et A139 et les nationales N138, N28 et N338 sont accessibles à moins de 10 km. On trouve une bibliothèque à quelques minutes à peine.
Son prix de vente est de 479 500 €.
Contactez notre agence (JOURDON AMANE : 0698975793) pour tout renseignement sur la propriété ou sur les modalités de vente. AMANE vous accompagne dans toutes vos démarches et à toutes les étapes de l'achat.

Annonce proposée par un Agent Commercial Partenaire.

Mentions légales

Terrain proposé par un partenaire foncier selon disponibilités et autorisation de publicité au prix de 179 000 €. Hors droit d'enregistrement et frais de notaire. Maison proposée, avec un contrat de construction de maison individuelle, dans le cadre de la loi du 19/12/1990, au prix de 300 500 € (Hors branchements et raccordements, papiers peints, peintures, revêtement de sol dans les chambres, qui sont chiffrés dans les travaux qui restent à charge du client. Tarif modifiable sans préavis). Étiquette énergie : A. Différents modèles disponibles pour ce terrain. Assurances et garanties du constructeur comprises (RC professionnelle, décennale, dommage ouvrage).

Contactez l'agence de Boos

02 35 80 66 66

    * Champs obligatoires

    Vos informations sont traitées par HEXAOM et transmises à un conseiller commercial qui vous contactera afin de répondre à votre demande. Les plans et images présentés sur notre site sont la propriété d’HEXAOM et ne peuvent pas être reproduits sans son accord. Pour retrouver notre politique de protection des données personnelles et exercer vos droits conformément à la « loi informatique et liberté » cliquez-ici.