Maison neuve à
Gouy (76520) Référence : MJ2334856_1

Prix du projet : Maison avec Terrain

prix 449 000 €

  • 9 pièces
  • 4 chambres
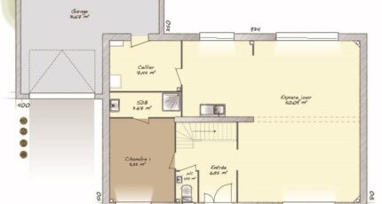
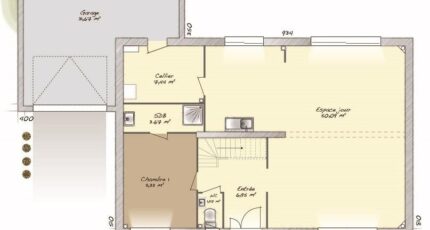
  • Surface maison 186 m2

VENTE : maison F9 (186 m²) à Gouy
QUARTIER RECHERCHÉ - MAISON 9 PIÈCES NEUVE
En vente : localisée à 10 km de Rouen, située dans un quartier attractif de Gouy (76520), ayez le coup de coeur pour cette maison de 9 pièces de 186 m².
Il s'agit d'une maison de 2 niveaux. Son intérieur dispose de quatre chambres, d'une cuisine et de deux salles de bains. La maison est neuve.
Le terrain de la propriété est de 597 m².
Ce bien est situé dans un secteur convoité. On trouve l'École Primaire Préhistoval à moins de 10 minutes à pied. Niveau transports, il y a cinq gares à moins de 10 minutes en voiture. Les autoroutes A13 et A139 et les nationales N138, N28 et N338 sont accessibles à moins de 10 km. On trouve une bibliothèque à proximité.
Il est à vendre pour la somme de 449 000 €.
N'hésitez pas à prendre contact avec Michael JOURDON (tél : 06.43.05.84.44) pour toute question sur la maison.

Annonce proposée par un Agent Commercial Partenaire.

Mentions légales

Terrain proposé par un partenaire foncier selon disponibilités et autorisation de publicité au prix de 103 000 €. Hors droit d'enregistrement et frais de notaire. Terrain + Maison proposés au prix de 346 000 € (Hors branchements et raccordements, papiers peints, peintures, revêtement de sol dans les chambres. Tarif modifiable sans préavis). Etiquette énergie : A. Différents modèles disponibles pour ce terrain. Assurances et garanties du constructeur (RC professionnelle, décennale, dommage ouvrage, garantie de remboursement de l'acompte, livraison à prix et délai convenu) : https://www.maisons-balency.fr/informations-legales/. HEXAOM Services est enregistré auprès de l'ORIAS en tant que Courtier en financement, Niveau 1, sous le numéro 14001345.

Contactez l'agence de Boos

02 35 80 66 66

    * Champs obligatoires

    Vos informations sont traitées par HEXAOM et transmises à un conseiller commercial qui vous contactera afin de répondre à votre demande. Les plans et images présentés sur notre site sont la propriété d’HEXAOM et ne peuvent pas être reproduits sans son accord. Pour retrouver notre politique de protection des données personnelles et exercer vos droits conformément à la « loi informatique et liberté » cliquez-ici.