Maison neuve à
Grangues
(14160) Référence :
SU2383594_2
Prix du projet : Maison avec Terrain
prix 477 900 €
- 7 pièces
- 5 chambres
- Surface maison 170 m2
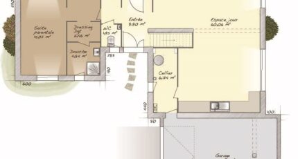
Grangues : maison de 7 pièces (170 m²) à vendre
PROCHE DU HAVRE - MAISON 7 PIÈCES NEUVE
À 10 minutes des plages de la Côte Fleurie et à quelques kilomètres du Havre, en vente à Grangues (14160), Maisons Balency Caen vous présente cette maison de 7 pièces de plain-pied de 170 m² et de 913 m² de terrain. Elle comporte cinq chambres, une cuisine et trois salles de bains.
La maison est neuve.
Il y a des écoles de tous types (de la maternelle au lycée) à moins de 10 minutes en voiture, tout comme une crèche à moins de 10 minutes à pied. Niveau transports, on trouve cinq gares à moins de 10 minutes en voiture. Il y a un accès à l'autoroute A13 à 4 km. Vous y trouverez à proximité; des commerces, des restaurants, des gymnases omnisport, deux ports de plaisance, piscine, supermarchés, boulangeries, poissonneries, épiceries, médecins, pharmacies. ainsi que 3 marchés qui animent mes environs.
Elle est proposée à l'achat pour 477 900 €.
Prenez contact avec Sophie UCENDO (06-35-39-35-17) pour tout renseignement sur la maison. Donnez vie à vos projets immobiliers avec Maisons Balency Caen.
Mentions légales
Terrain proposé par un partenaire foncier selon disponibilités et autorisation de publicité au prix de 148 000 €. Hors droit d'enregistrement et frais de notaire. Terrain + Maison proposés au prix de 477 900 € (Hors branchements et raccordements, papiers peints, peintures, revêtement de sol dans les chambres. Tarif modifiable sans préavis). Etiquette énergie : A. Différents modèles disponibles pour ce terrain. Assurances et garanties du constructeur (RC professionnelle, décennale, dommage ouvrage, garantie de remboursement de l'acompte, livraison à prix et délai convenu) : https://www.maisons-balency.fr/informations-legales/. HEXAOM Services est enregistré auprès de l'ORIAS en tant que Courtier en financement, Niveau 1, sous le numéro 14001345.Agence Maisons Balency de Caen (14000)
- Téléphone :
- 02 31 50 38 15
- Adressse :
- 133, rue Saint Jean
14000 Caen, France
