Maison neuve à
Gressey
(78550) Référence :
TD2256602_2
Prix du projet : Maison avec Terrain
prix 556 830 €
- 7 pièces
- 4 chambres
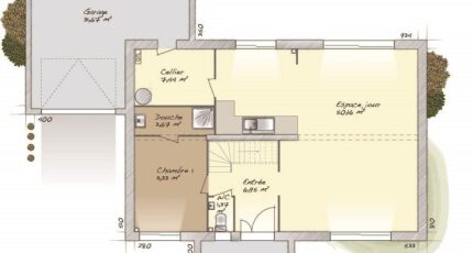
- Surface maison 160 m2
VENTE d'une maison de 7 pièces (160 m²) à Gressey
IDÉALEMENT SITUÉE - MAISON 7 PIÈCES NEUVE
À vendre : à deux pas du Transilien N (gare de Houdan, 50 min de Paris), Maisons Balency Coignières vous présente cette maison de 7 pièces de 160 m² et de 591 m² de terrain idéalement située dans Gressey (78550). Son intérieur compte quatre chambres, une cuisine et deux salles de bains.
Il s'agit d'une maison de 2 niveaux. Elle est neuve.
La maison est située dans un secteur convoité. On y trouve une école maternelle. Il y a une bibliothèque et deux commerces à proximité.
Elle est proposée à l'achat pour 556 830 €.
N'hésitez pas à prendre contact avec Thibault DUTEURTRE (tél : 06-23-41-73-81) pour obtenir de plus amples renseignements sur la maison, sur les démarches à suivre ou sur les modalités de vente. Maisons Balency Coignières est là pour vous accompagner à toutes les étapes de l'achat.
Annonce proposée par un Agent Commercial Partenaire.
Mentions légales
Terrain proposé par un partenaire foncier selon disponibilités et autorisation de publicité au prix de 159 000 €. Hors droit d'enregistrement et frais de notaire. Maison proposée, avec un contrat de construction de maison individuelle, dans le cadre de la loi du 19/12/1990, au prix de 397 830 € (Hors branchements et raccordements, papiers peints, peintures, revêtement de sol dans les chambres, qui sont chiffrés dans les travaux qui restent à charge du client. Tarif modifiable sans préavis). Étiquette énergie : A. Différents modèles disponibles pour ce terrain. Assurances et garanties du constructeur comprises (RC professionnelle, décennale, dommage ouvrage).Agence Maisons Balency de Coignières (78310)
- Téléphone :
- 01 34 61 42 59
- Adressse :
- Domexpo Ouest
78310 Coignières, France
