Maison neuve à
Grisy-Suisnes
(77166) Référence :
AM2454059_2
Prix du projet : Maison avec Terrain
prix 440 000 €
- 6 pièces
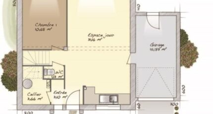
- 4 chambres
- Surface maison 98 m2
VENTE : maison de 6 pièces (98 m²) à Grisy-Suisnes
PROCHE DE MONTREUIL - MAISON 6 PIÈCES NEUVE
À proximité du RER E (station Gretz-Armainvilliers, 35 min de Paris), votre agence Maisons Balency Saint-Maur-des-Fossés est ravie de vous présenter cette maison de 6 pièces de 98 m² et de 1 400 m² de terrain à vendre à Grisy-Suisnes (77166).
Cette maison comporte 2 niveaux. Elle comporte quatre chambres, une cuisine et une salle de bains. Cette maison est neuve.
Il y a l'École Élémentaire Champ Fleuri et l'École Maternelle la Ruche à moins de 10 minutes à pied. Côté transports, on trouve les lignes de RER E et D ainsi que cinq gares à moins de 10 minutes en voiture. Il y a un tennis, une bibliothèque, deux commerces, une épicerie et un bureau de poste à proximité du logement.
Il est à vendre pour la somme de 440 000 €.
Contactez Aurelien MONTANIER (06-24-66-88-34) pour plus de renseignements sur cette maison.
Annonce proposée par un Agent Commercial Partenaire.
Mentions légales
Terrain proposé par un partenaire foncier selon disponibilités et autorisation de publicité au prix de 220 000 €. Hors droit d'enregistrement et frais de notaire. Terrain + Maison proposés au prix de 440 000 € (Hors branchements et raccordements, papiers peints, peintures, revêtement de sol dans les chambres. Tarif modifiable sans préavis). Etiquette énergie : A. Différents modèles disponibles pour ce terrain. Assurances et garanties du constructeur (RC professionnelle, décennale, dommage ouvrage, garantie de remboursement de l'acompte, livraison à prix et délai convenu) : https://www.maisons-balency.fr/informations-legales/. HEXAOM Services est enregistré auprès de l'ORIAS en tant que Courtier en financement, Niveau 1, sous le numéro 14001345.Agence Maisons Balency de Saint-Maur-des-Fossés (94100)
- Téléphone :
- 01 87 36 85 37
- Adressse :
- 12 avenue de la république
94100 Saint-Maur-des-Fossés, France
