Maison neuve à
Grosley-sur-Risle (27170) Référence : KB2398939_4

Prix du projet : Maison avec Terrain

prix 173 000 €

  • 5 pièces
  • 3 chambres
  • Surface maison 76 m2

Grosley-sur-Risle : maison de 5 pièces (76 m²) en vente
IDÉALEMENT SITUÉE - MAISON 5 PIÈCES NEUVE
À quelques kilomètres d'Évreux, laissez vous charmer par cette maison de 5 pièces de 76 m² et de 840 m² de terrain idéalement située dans Grosley-sur-Risle (27170).
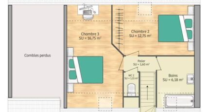
Cette maison comporte 2 niveaux. Elle se divise en trois chambres, une cuisine et une salle de bains. Cette maison est neuve.
Le bien se situe dans un quartier recherché. Il y a l'École Maternelle Intercommunale à moins de 10 minutes à pied. Niveau transports en commun, on trouve les gares Beaumont-le-Roger, Romilly-la-Puthenaye et Serquigny à moins de 10 minutes en voiture. On trouve un accès à l'autoroute A28 à 20 km.
Il est proposé à l'achat pour 173 000 €.
N'hésitez pas à prendre contact avec notre agence (Kamel BAZIZ : 07-80-36-63-82) pour obtenir de plus amples renseignements sur la maison ou sur les modalités de vente. Maisons Balency Boos vous accompagne à toutes les étapes de votre projet et dans toutes vos démarches.

Annonce proposée par un Agent Commercial Partenaire.

Mentions légales

Terrain proposé par un partenaire foncier selon disponibilités et autorisation de publicité au prix de 26 500 €. Hors droit d'enregistrement et frais de notaire. Terrain + Maison proposés au prix de 173 000 € (Hors branchements et raccordements, papiers peints, peintures, revêtement de sol dans les chambres. Tarif modifiable sans préavis). Etiquette énergie : A. Différents modèles disponibles pour ce terrain. Assurances et garanties du constructeur (RC professionnelle, décennale, dommage ouvrage, garantie de remboursement de l'acompte, livraison à prix et délai convenu) : https://www.maisons-balency.fr/informations-legales/. HEXAOM Services est enregistré auprès de l'ORIAS en tant que Courtier en financement, Niveau 1, sous le numéro 14001345.

Contactez l'agence de Boos

02 35 80 66 66

    * Champs obligatoires

    Vos informations sont traitées par HEXAOM et transmises à un conseiller commercial qui vous contactera afin de répondre à votre demande. Les plans et images présentés sur notre site sont la propriété d’HEXAOM et ne peuvent pas être reproduits sans son accord. Pour retrouver notre politique de protection des données personnelles et exercer vos droits conformément à la « loi informatique et liberté » cliquez-ici.