Maison neuve à
Guzargues
(34820) Référence :
CJ2353212_4
Prix du projet : Maison avec Terrain
prix 520 000 €
- 6 pièces
- 5 chambres
- Surface maison 114 m2
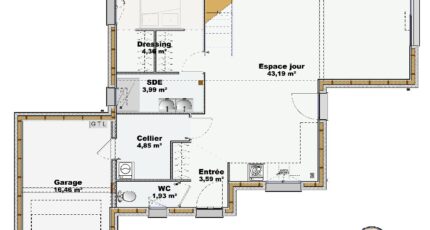
VENTE : maison de 6 pièces (114 m²) à Guzargues
EMPLACEMENT PRIVILÉGIÉ - MAISON 6 PIÈCES NEUVE
À 21 km de la côte méditerranéenne et à deux pas de Montpellier, ayez le coup de coeur pour à vendre, bénéficiant d'un emplacement d'exception dans Guzargues (34820), cette maison de 6 pièces de 114 m² et de 550 m² de terrain.
Cette maison compte 2 niveaux. Son intérieur offre cinq chambres, une cuisine et deux salles de bains. La maison est neuve.
Ce bien se trouve dans un secteur convoité. L'autoroute A709 et la nationale N113 sont accessibles à moins de 10 km. Il y a un tennis à quelques minutes du logement.
Son prix de vente est de 520 000 €.
Prenez contact avec notre agence (Cédric : 06-30-92-83-25) pour toute information sur la maison.
Mentions légales
Terrain proposé par un partenaire foncier selon disponibilités et autorisation de publicité au prix de 235 000 €. Hors droit d'enregistrement et frais de notaire. Maison proposée, avec un contrat de construction de maison individuelle, dans le cadre de la loi du 19/12/1990, au prix de 285 000 € (Hors branchements et raccordements, papiers peints, peintures, revêtement de sol dans les chambres, qui sont chiffrés dans les travaux qui restent à charge du client. Tarif modifiable sans préavis). Étiquette énergie : A. Différents modèles disponibles pour ce terrain. Assurances et garanties du constructeur comprises (RC professionnelle, décennale, dommage ouvrage).Agence Maisons Balency de Castries (34160)
- Téléphone :
- 04 99 62 92 10
- Adressse :
- 138, avenue de la Royale
34160 Castries, France
