Maison neuve à
Guzargues
(34820) Référence :
CJ2407754_2
Prix du projet : Maison avec Terrain
prix 480 000 €
- 6 pièces
- 4 chambres
- Surface maison 125 m2
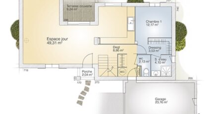
Guzargues : maison de 6 pièces (125 m²) en vente
EMPLACEMENT PRIVILÉGIÉ - MAISON 6 PIÈCES NEUVE
En vente : localisée à 21 km de la mer Méditerranée et à 14 km de Montpellier, Maisons Balency Castries vous présente cette maison de 6 pièces de 125 m² bénéficiant d'un emplacement privilégié dans Guzargues (34820).
Il s'agit d'une maison de 2 niveaux. Son intérieur comporte quatre chambres, une cuisine et deux salles de bains. Cette maison est neuve.
Le terrain du bien s'étend sur 600 m².
La maison se situe dans un quartier convoité. L'autoroute A709 et la nationale N113 sont accessibles à moins de 10 km. Il y a un tennis à quelques minutes.
Son prix de vente est de 480 000 €.
Prenez contact avec notre agence (Cédric : 06-30-92-83-25) pour tout renseignement sur le bien. Faites de vos projets immobiliers une réalité avec Maisons Balency Castries.
Mentions légales
Terrain proposé par un partenaire foncier selon disponibilités et autorisation de publicité au prix de 205 000 €. Hors droit d'enregistrement et frais de notaire. Terrain + Maison proposés au prix de 480 000 € (Hors branchements et raccordements, papiers peints, peintures, revêtement de sol dans les chambres. Tarif modifiable sans préavis). Etiquette énergie : A. Différents modèles disponibles pour ce terrain. Assurances et garanties du constructeur (RC professionnelle, décennale, dommage ouvrage, garantie de remboursement de l'acompte, livraison à prix et délai convenu) : https://www.maisons-balency.fr/informations-legales/. HEXAOM Services est enregistré auprès de l'ORIAS en tant que Courtier en financement, Niveau 1, sous le numéro 14001345.Agence Maisons Balency de Castries (34160)
- Téléphone :
- 04 99 62 92 10
- Adressse :
- 138, avenue de la Royale
34160 Castries, France
