Maison neuve à
Hargeville
(78790) Référence :
TD2251781_3
Prix du projet : Maison avec Terrain
prix 493 745 €
- 7 pièces
- 4 chambres
- Surface maison 160 m2
Hargeville : maison de 7 pièces (160 m²) en vente
IDÉALEMENT SITUÉE - MAISON 7 PIÈCES NEUVE
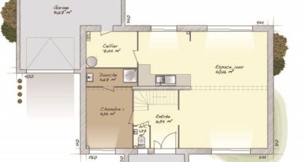
À deux pas de la gare d'Orgerus-Béhoust (Paris à 45 min avec le Transilien N), notre agence Maisons Balency Coignières est heureuse de vous présenter cette maison de 7 pièces de 160 m² et de 501 m² de terrain idéalement située dans Hargeville (78790).
C'est une maison de 2 niveaux. Elle comporte quatre chambres, une cuisine et deux salles de bains. Cette maison est neuve.
Cette maison se situe dans un secteur recherché. On trouve l'École Primaire Henri Barlet à moins de 10 minutes à pied. On trouve un tennis, un commerce et une boulangerie à quelques minutes à peine.
Elle est proposée à l'achat pour 493 745 €.
Prenez contact avec Thibault DUTEURTRE (tél : 06-23-41-73-81) pour obtenir de plus amples renseignements sur la maison ou sur les démarches à suivre. Maisons Balency Coignières est là pour vous accompagner dans tous vos projets immobiliers.
Annonce proposée par un Agent Commercial Partenaire.
Mentions légales
Terrain proposé par un partenaire foncier selon disponibilités et autorisation de publicité au prix de 135 000 €. Hors droit d'enregistrement et frais de notaire. Maison proposée, avec un contrat de construction de maison individuelle, dans le cadre de la loi du 19/12/1990, au prix de 358 745 € (Hors branchements et raccordements, papiers peints, peintures, revêtement de sol dans les chambres, qui sont chiffrés dans les travaux qui restent à charge du client. Tarif modifiable sans préavis). Étiquette énergie : A. Différents modèles disponibles pour ce terrain. Assurances et garanties du constructeur comprises (RC professionnelle, décennale, dommage ouvrage).Agence Maisons Balency de Coignières (78310)
- Téléphone :
- 01 34 61 42 59
- Adressse :
- Domexpo Ouest
78310 Coignières, France
