Maison neuve à
Herblay
(95220) Référence :
AD2301185_1
Prix du projet : Maison avec Terrain
prix 545 000 €
- 6 pièces
- 3 chambres
- Surface maison 133 m2
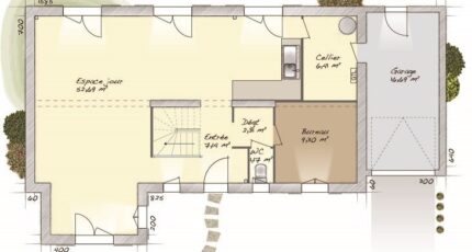
Maison de 6 pièces (133 m²) à vendre à Herblay
MAISON 6 PIÈCES NEUVE
À 255 m de la gare (Paris à 20 min par le Transilien J), Maisons Balency Coignières vous présente cette maison de 6 pièces de 133 m² à Herblay (95220). Elle propose trois chambres, une cuisine et deux salles de bains.
Le terrain de cette maison s'étend sur 425 m².
Cette maison possède 2 niveaux. Elle est neuve.
Plusieurs établissements scolaires (maternelle, élémentaire, primaire et collège) sont implantés à moins de 10 minutes à pied, tout comme deux structures d'accueil pour la petite enfance. Côté transports en commun, il y a la gare Herblay à quelques pas de la maison. On trouve des commerces, des boulangeries, un supermarché, un bureau de poste et deux boucheries-charcuteries dans les environs.
Elle est proposée à l'achat pour 545 000 €.
Prenez contact avec notre agence (DUTEURTRE Arnaud : 06-13-43-01-46) pour obtenir de plus amples renseignements sur cette maison et sur les modalités de vente. Maisons Balency Coignières vous accompagne dans toutes vos démarches et à toutes les étapes de votre projet.
Annonce proposée par un Agent Commercial Partenaire.
Mentions légales
Terrain proposé par un partenaire foncier selon disponibilités et autorisation de publicité au prix de 250 000 €. Hors droit d'enregistrement et frais de notaire. Maison proposée, avec un contrat de construction de maison individuelle, dans le cadre de la loi du 19/12/1990, au prix de 295 000 € (Hors branchements et raccordements, papiers peints, peintures, revêtement de sol dans les chambres, qui sont chiffrés dans les travaux qui restent à charge du client. Tarif modifiable sans préavis). Étiquette énergie : A. Différents modèles disponibles pour ce terrain. Assurances et garanties du constructeur comprises (RC professionnelle, décennale, dommage ouvrage).Agence Maisons Balency de Coignières (78310)
- Téléphone :
- 01 34 61 42 59
- Adressse :
- Domexpo Ouest
78310 Coignières, France
