Maison neuve à
Array
(Array) Référence :
AF2355111_4
Prix du projet : Maison avec Terrain
prix 430 000 €
- 7 pièces
- 5 chambres
- Surface maison 124 m2
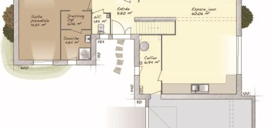
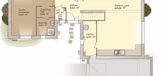
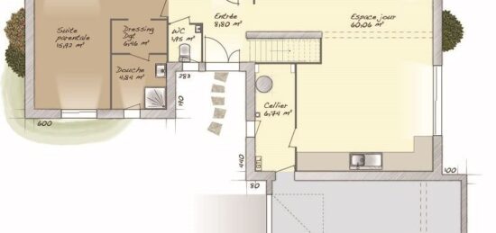
VENTE : maison F7 (124 m²) à Herblay
MAISON 7 PIÈCES NEUVE
À 255 m du Transilien J (20 min de Paris), nous sommes ravis de vous proposer cette maison de 7 pièces de 124 m² à Herblay (95220).
C'est une maison de 2 niveaux. Elle inclut cinq chambres, une cuisine et trois salles de bains. Cette maison est neuve.
Le terrain du bien est de 520 m².
Il y a plusieurs établissements scolaires (maternelle, élémentaire, primaire et collège) à moins de 10 minutes à pied, tout comme deux crèches. Niveau transports, on trouve la gare Herblay dans les alentours. Il y a des commerces, des boulangeries, un supermarché, deux boucheries-charcuteries et des épiceries à proximité du logement.
Elle est proposée à l'achat pour 430 000 €.
Contactez notre agence (Antoine FLIPPE : 07-82-59-37-75) pour toute question sur la maison, sur les modalités de vente ou sur les démarches à suivre. Maisons Balency Baillet-en-France vous accompagne dans tous vos projets immobiliers et à toutes les étapes de votre projet.
Annonce proposée par un Agent Commercial Partenaire.
Mentions légales
Terrain proposé par un partenaire foncier selon disponibilités et autorisation de publicité au prix de 235 000 €. Hors droit d'enregistrement et frais de notaire. Maison proposée, avec un contrat de construction de maison individuelle, dans le cadre de la loi du 19/12/1990, au prix de 195 000 € (Hors branchements et raccordements, papiers peints, peintures, revêtement de sol dans les chambres, qui sont chiffrés dans les travaux qui restent à charge du client. Tarif modifiable sans préavis). Étiquette énergie : A. Différents modèles disponibles pour ce terrain. Assurances et garanties du constructeur comprises (RC professionnelle, décennale, dommage ouvrage).Agence Maisons Balency de Baillet-en-France (95560)
- Téléphone :
- 01 34 46 05 23
- Adressse :
- 81 rue de Paris
95560 Baillet-en-France, France
