Maison neuve à
Array
(Array) Référence :
CT2415069_1
Prix du projet : Maison avec Terrain
prix 543 920 €
- 7 pièces
- 4 chambres
- Surface maison 160 m2
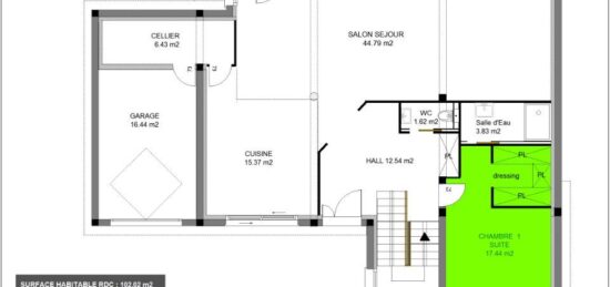
Maison de 7 pièces (160 m²) en vente à Herblay
PROCHE GARE - MAISON 7 PIÈCES NEUVE
En vente : à 255 m du Transilien J (20 min de Paris), nous sommes heureux de vous présenter, dans Herblay (95220), proche de la gare, cette maison de 7 pièces de 160 m² et de 840 m² de terrain avec vue sur jardin.
Cette maison compte 2 niveaux. Elle dispose de quatre chambres, d'une cuisine et de deux salles de bains. Cette maison est neuve.
On trouve plusieurs écoles (maternelle, élémentaire, primaire et collège) à moins de 10 minutes à pied, tout comme deux crèches. Niveau transports en commun, il y a la gare Herblay à quelques pas du bien. On trouve des commerces, des boulangeries, un supermarché, un bureau de poste et des épiceries à quelques minutes.
Elle est à vendre pour la somme de 543 920 €.
N'hésitez pas à prendre contact avec notre agence (Christophe TALAMONI : 06-49-55-08-27) pour toute question sur le bien. Concrétisez vos projets immobiliers avec Maisons Balency Baillet-en-France.
Annonce proposée par un Agent Commercial Partenaire.
Mentions légales
Terrain proposé par un partenaire foncier selon disponibilités et autorisation de publicité au prix de 249 000 €. Hors droit d'enregistrement et frais de notaire. Terrain + Maison proposés au prix de 543 920 € (Hors branchements et raccordements, papiers peints, peintures, revêtement de sol dans les chambres. Tarif modifiable sans préavis). Etiquette énergie : A. Différents modèles disponibles pour ce terrain. Assurances et garanties du constructeur (RC professionnelle, décennale, dommage ouvrage, garantie de remboursement de l'acompte, livraison à prix et délai convenu) : https://www.maisons-balency.fr/informations-legales/. HEXAOM Services est enregistré auprès de l'ORIAS en tant que Courtier en financement, Niveau 1, sous le numéro 14001345.Agence Maisons Balency de Baillet-en-France (95560)
- Téléphone :
- 01 34 46 05 23
- Adressse :
- 81 rue de Paris
95560 Baillet-en-France, France
