Maison neuve à
Array
(Array) Référence :
CT2415069_2
Prix du projet : Maison avec Terrain
prix 574 960 €
- 9 pièces
- 4 chambres
- Surface maison 186 m2
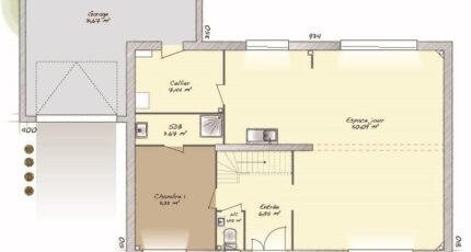
VENTE d'une maison de 9 pièces (186 m²) à Herblay
PROCHE GARE - MAISON 9 PIÈCES NEUVE
À côté de la gare (Paris à 20 min par le Transilien J), venez découvrir à vendre, proche de la gare d'Herblay (95220), cette maison de 9 pièces de 186 m² et de 840 m² de terrain.
C'est une maison de 2 niveaux. Elle propose quatre chambres, une cuisine et deux salles de bains. La maison est neuve.
Il y a plusieurs écoles (maternelle, élémentaire, primaire et collège) à moins de 10 minutes à pied, tout comme deux structures d'accueil pour la petite enfance. Niveau transports, on trouve la gare Herblay dans les environs. Il y a des commerces, des boulangeries, un supermarché, deux boucheries-charcuteries et des épiceries à proximité du logement.
Elle est à vendre pour la somme de 574 960 €.
Contactez Christophe TALAMONI (06-49-55-08-27) pour toute question sur la maison.
Annonce proposée par un Agent Commercial Partenaire.
Mentions légales
Terrain proposé par un partenaire foncier selon disponibilités et autorisation de publicité au prix de 249 000 €. Hors droit d'enregistrement et frais de notaire. Terrain + Maison proposés au prix de 574 960 € (Hors branchements et raccordements, papiers peints, peintures, revêtement de sol dans les chambres. Tarif modifiable sans préavis). Etiquette énergie : A. Différents modèles disponibles pour ce terrain. Assurances et garanties du constructeur (RC professionnelle, décennale, dommage ouvrage, garantie de remboursement de l'acompte, livraison à prix et délai convenu) : https://www.maisons-balency.fr/informations-legales/. HEXAOM Services est enregistré auprès de l'ORIAS en tant que Courtier en financement, Niveau 1, sous le numéro 14001345.Agence Maisons Balency de Baillet-en-France (95560)
- Téléphone :
- 01 34 46 05 23
- Adressse :
- 81 rue de Paris
95560 Baillet-en-France, France
