Maison neuve à
Hermanville-sur-Mer
(14880) Référence :
SU2385103_2
Prix du projet : Maison avec Terrain
prix 379 900 €
- 5 pièces
- 3 chambres
- Surface maison 120 m2
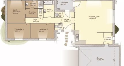
VENTE d'une maison de 5 pièces (120 m²) à Hermanville-sur-Mer
MAISON 5 PIÈCES NEUVE - PROCHE DE CAEN
À vendre : située à 2 km de la plage et à 14 km du centre-ville de Caen, ayez le coup de coeur pour cette maison de 5 pièces de plain-pied de 120 m² et de 400 m² de terrain à Hermanville-sur-Mer (14880). Elle comporte trois chambres, une cuisine et deux salles de bains.
Cette maison est neuve.
Il y a une école primaire dans le quartier.
À 10 minutes de Ouistreham : un bourg dynamique avec commerces et infrastructures.
À 20 minutes de Caen : accès rapide à la métropole via la D514 et la N814.
On trouve un gymnase omnisport, une boulangerie, un commerce, une boucherie-charcuterie et un bureau de poste dans les environs.
Son prix de vente est de 379 900 €.
Contactez Sophie UCENDO (06-35-39-35-17) pour plus de renseignements sur la maison.
Mentions légales
Terrain proposé par un partenaire foncier selon disponibilités et autorisation de publicité au prix de 108 000 €. Hors droit d'enregistrement et frais de notaire. Terrain + Maison proposés au prix de 271 900 € (Hors branchements et raccordements, papiers peints, peintures, revêtement de sol dans les chambres. Tarif modifiable sans préavis). Etiquette énergie : A. Différents modèles disponibles pour ce terrain. Assurances et garanties du constructeur (RC professionnelle, décennale, dommage ouvrage, garantie de remboursement de l'acompte, livraison à prix et délai convenu) : https://www.maisons-balency.fr/informations-legales/. HEXAOM Services est enregistré auprès de l'ORIAS en tant que Courtier en financement, Niveau 1, sous le numéro 14001345.Agence Maisons Balency de Caen (14000)
- Téléphone :
- 02 31 50 38 15
- Adressse :
- 133, rue Saint Jean
14000 Caen, France
