Maison neuve à
Hermeray
(78125) Référence :
TD2295652_3
Prix du projet : Maison avec Terrain
prix 394 100 €
- 6 pièces
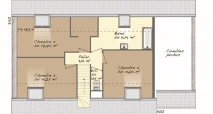
- 4 chambres
- Surface maison 117 m2
Maison T6 (117 m²) à vendre à Hermeray
IDÉALEMENT SITUÉE - MAISON 6 PIÈCES NEUVE
À vendre à deux pas de Chartres, idéalement située dans Hermeray (78125), Maisons Balency Coignières vous présente cette maison de 6 pièces de plain-pied de 117 m² et de 700 m² de terrain.
Elle compte quatre chambres, une cuisine et deux salles de bains. La maison est neuve.
Cette maison se trouve dans un secteur prisé. Une école élémentaire y est implantée. Niveau transports, il y a les gares Épernon, Gazeran et Maintenon à moins de 10 minutes en voiture. On trouve un commerce à quelques minutes.
Elle est à vendre pour la somme de 394 100 €.
Prenez contact avec Thibault DUTEURTRE (06-23-41-73-81) pour toute question sur la propriété, sur les démarches à suivre ou sur les modalités de vente. Concrétisez vos projets immobiliers avec Maisons Balency Coignières.
Annonce proposée par un Agent Commercial Partenaire.
Mentions légales
Terrain proposé par un partenaire foncier selon disponibilités et autorisation de publicité au prix de 139 900 €. Hors droit d'enregistrement et frais de notaire. Maison proposée, avec un contrat de construction de maison individuelle, dans le cadre de la loi du 19/12/1990, au prix de 254 200 € (Hors branchements et raccordements, papiers peints, peintures, revêtement de sol dans les chambres, qui sont chiffrés dans les travaux qui restent à charge du client. Tarif modifiable sans préavis). Étiquette énergie : A. Différents modèles disponibles pour ce terrain. Assurances et garanties du constructeur comprises (RC professionnelle, décennale, dommage ouvrage).Agence Maisons Balency de Coignières (78310)
- Téléphone :
- 01 34 61 42 59
- Adressse :
- Domexpo Ouest
78310 Coignières, France
