Maison neuve à
Hermeray
(78125) Référence :
TD2413272_3
Prix du projet : Maison avec Terrain
prix 394 100 €
- 6 pièces
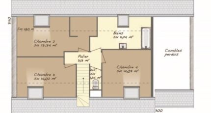
- 4 chambres
- Surface maison 117 m2
VENTE : maison de 6 pièces (117 m²) à Hermeray
IDÉALEMENT SITUÉE - MAISON 6 PIÈCES NEUVE
À vendre : à quelques kilomètres de Chartres, notre agence Maisons Balency Coignières est heureuse de vous présenter cette maison de 6 pièces de plain-pied de 117 m² idéalement située dans Hermeray (78125). Elle comporte quatre chambres, une cuisine et deux salles de bains.
Le terrain de la propriété est de 700 m².
La maison est neuve.
Cette maison se situe dans un quartier recherché. On y trouve une école élémentaire. Côté transports en commun, il y a les gares Épernon, Gazeran et Maintenon à moins de 10 minutes en voiture. On trouve un commerce à proximité.
Elle est à vendre pour la somme de 394 100 €.
Contactez notre constructeur (DUTEURTRE Thibault : 06-23-41-73-81) pour obtenir de plus amples informations sur la maison.
Annonce proposée par un Agent Commercial Partenaire.
Mentions légales
Terrain proposé par un partenaire foncier selon disponibilités et autorisation de publicité au prix de 139 900 €. Hors droit d'enregistrement et frais de notaire. Terrain + Maison proposés au prix de 394 100 € (Hors branchements et raccordements, papiers peints, peintures, revêtement de sol dans les chambres. Tarif modifiable sans préavis). Etiquette énergie : A. Différents modèles disponibles pour ce terrain. Assurances et garanties du constructeur (RC professionnelle, décennale, dommage ouvrage, garantie de remboursement de l'acompte, livraison à prix et délai convenu) : https://www.maisons-balency.fr/informations-legales/. HEXAOM Services est enregistré auprès de l'ORIAS en tant que Courtier en financement, Niveau 1, sous le numéro 14001345.Agence Maisons Balency de Coignières (78310)
- Téléphone :
- 01 34 61 42 59
- Adressse :
- Domexpo Ouest
78310 Coignières, France
