Maison neuve à
Heudreville-sur-Eure (27400) Référence : SEMA9010_1

Prix du projet : Maison avec Terrain

prix 171 000 €

  • 4 pièces
  • 2 chambres
  • Surface maison 50 m2

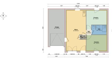
Maison de 4 pièces (49 m²) à vendre à Heudreville-sur-Eure
PROCHE D'ÉVREUX - MAISON 4 PIÈCES NEUVE
À deux pas d'Évreux, Maisons Balency Boos vous propose cette maison de 4 pièces de plain-pied de 49 m² à vendre à Heudreville-sur-Eure (27400).
Son intérieur propose deux chambres, une cuisine et une salle de bains. La maison est neuve.
Le terrain de la propriété s'étend sur 800 m².
Une école primaire est implantée dans le quartier. Les autoroutes A154 et A13 et la nationale N154 sont accessibles à moins de 7 km. On trouve une bibliothèque et une boulangerie à quelques minutes à peine.
Elle est à vendre pour la somme de 171 000 €.
Prenez contact avec Sébastien MASSON (tél : 06-23-38-14-17) pour tout renseignement sur cette maison ou sur les démarches à suivre. Maisons Balency Boos vous accompagne dans tous vos projets immobiliers et à toutes les étapes de votre projet.

Annonce proposée par un Agent Commercial Partenaire.

Mentions légales

Terrain proposé par un partenaire foncier selon disponibilités et autorisation de publicité au prix de 67 000 €. Hors droit d'enregistrement et frais de notaire. Terrain + Maison proposés au prix de 104 000 € (Hors branchements et raccordements, papiers peints, peintures, revêtement de sol dans les chambres. Tarif modifiable sans préavis). Etiquette énergie : A. Différents modèles disponibles pour ce terrain. Assurances et garanties du constructeur (RC professionnelle, décennale, dommage ouvrage, garantie de remboursement de l'acompte, livraison à prix et délai convenu) : https://www.maisons-balency.fr/informations-legales/. HEXAOM Services est enregistré auprès de l'ORIAS en tant que Courtier en financement, Niveau 1, sous le numéro 14001345.

Contactez l'agence de Boos

02 35 80 66 66

    * Champs obligatoires

    Vos informations sont traitées par HEXAOM et transmises à un conseiller commercial qui vous contactera afin de répondre à votre demande. Les plans et images présentés sur notre site sont la propriété d’HEXAOM et ne peuvent pas être reproduits sans son accord. Pour retrouver notre politique de protection des données personnelles et exercer vos droits conformément à la « loi informatique et liberté » cliquez-ici.