Maison neuve à
Houilles
(78800) Référence :
CT2324343_2
Prix du projet : Maison avec Terrain
prix 449 800 €
- 5 pièces
- 3 chambres
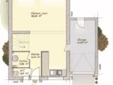
- Surface maison 90 m2
VENTE d'une maison T5 (90 m²) à Houilles
PROCHE GARE - MAISON 5 PIÈCES NEUVE
En vente : à côté du RER A (station Houilles-Carrières-sur-Seine, 10 min de Paris), nous sommes heureux de vous présenter cette maison de 5 pièces de 90 m² proche de la gare de Houilles (78800). Son intérieur comporte trois chambres, une cuisine et une salle de bains.
Le terrain de la propriété est de 374 m².
Il s'agit d'une maison de 2 niveaux. Elle est neuve.
Il y a plusieurs établissements scolaires (maternelle, élémentaire et collège) à moins de 10 minutes à pied. Niveau transports en commun, on trouve la station de RER Houilles-Carrières-Sur-Seine (ligne A) ainsi que la gare Houilles-Carrières-sur-Seine dans un rayon de 1 km. Il y a un bassin de natation, des commerces, des boulangeries, trois supermarchés, des boucheries-charcuteries et des épiceries à proximité. Enfin, le marché Rue Carnot anime le quartier.
Elle est proposée à l'achat pour 449 800 €.
Prenez contact avec notre agence (Christophe TALAMONI : 06-49-55-08-27) pour plus de renseignements sur la maison.
Annonce proposée par un Agent Commercial Partenaire.
Mentions légales
Terrain proposé par un partenaire foncier selon disponibilités et autorisation de publicité au prix de 240 000 €. Hors droit d'enregistrement et frais de notaire. Maison proposée, avec un contrat de construction de maison individuelle, dans le cadre de la loi du 19/12/1990, au prix de 209 800 € (Hors branchements et raccordements, papiers peints, peintures, revêtement de sol dans les chambres, qui sont chiffrés dans les travaux qui restent à charge du client. Tarif modifiable sans préavis). Étiquette énergie : A. Différents modèles disponibles pour ce terrain. Assurances et garanties du constructeur comprises (RC professionnelle, décennale, dommage ouvrage).Agence Maisons Balency de Baillet-en-France (95560)
- Téléphone :
- 01 34 46 05 23
- Adressse :
- 81 rue de Paris
95560 Baillet-en-France, France
