Maison neuve à
Houppeville (76770) Référence : EL2316456_1

Prix du projet : Maison avec Terrain

prix 208 000 €

  • 4 pièces
  • 2 chambres
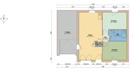
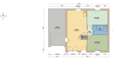
  • Surface maison 50 m2

Maison de 4 pièces (50 m²) à vendre à Houppeville
IDÉALEMENT SITUÉE - MAISON 4 PIÈCES NEUVE
À vendre : située à 46 km de la Manche et à deux pas de Rouen, idéalement située dans Houppeville (76770), nous vous proposons cette maison de 4 pièces de plain-pied de 50 m².
Son intérieur dispose de deux chambres, d'une cuisine et d'une salle de bains. La maison est neuve.
Le terrain de la propriété est de 597 m².
Cette maison se situe dans un secteur convoité. L'École Élémentaire Gérard Philipe et l'École Maternelle Jean de la Fontaine se trouvent à moins de 10 minutes à pied. Niveau transports en commun, il y a sept gares à moins de 10 minutes en voiture. Les autoroutes A151, A150 et A28 et les nationales N28 et N338 sont accessibles à moins de 8 km. On trouve un tennis, une boulangerie, une épicerie, un bureau de poste et une boucherie-charcuterie à proximité du bien.
Elle est proposée à l'achat pour 208 000 €.
Contactez Dany LEOVANT (06-09-43-87-49) pour obtenir de plus amples informations sur la maison, sur les modalités de vente et sur les démarches à suivre. Maisons Balency Boos vous accompagne à toutes les étapes de votre projet et dans tous vos projets immobiliers.

Annonce proposée par un Agent Commercial Partenaire.

Mentions légales

Terrain proposé par un partenaire foncier selon disponibilités et autorisation de publicité au prix de 103 000 €. Hors droit d'enregistrement et frais de notaire. Terrain + Maison proposés au prix de 208 000 € (Hors branchements et raccordements, papiers peints, peintures, revêtement de sol dans les chambres. Tarif modifiable sans préavis). Etiquette énergie : A. Différents modèles disponibles pour ce terrain. Assurances et garanties du constructeur (RC professionnelle, décennale, dommage ouvrage, garantie de remboursement de l'acompte, livraison à prix et délai convenu) : https://www.maisons-balency.fr/informations-legales/. HEXAOM Services est enregistré auprès de l'ORIAS en tant que Courtier en financement, Niveau 1, sous le numéro 14001345.

Contactez l'agence de Boos

02 35 80 66 66

    * Champs obligatoires

    Vos informations sont traitées par HEXAOM et transmises à un conseiller commercial qui vous contactera afin de répondre à votre demande. Les plans et images présentés sur notre site sont la propriété d’HEXAOM et ne peuvent pas être reproduits sans son accord. Pour retrouver notre politique de protection des données personnelles et exercer vos droits conformément à la « loi informatique et liberté » cliquez-ici.