Maison neuve à
Igoville (27460) Référence : KD2335788_1

Prix du projet : Maison avec Terrain

prix 411 669 €

  • 7 pièces
  • 4 chambres
  • Surface maison 160 m2

VENTE : maison T7 (160 m²) à Igoville
MAISON 7 PIÈCES NEUVE - PROCHE DE ROUEN
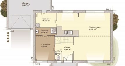
À vendre : à quelques kilomètres de Rouen, nous vous proposons à Igoville (27460), cette maison de 7 pièces de 160 m².
C'est une maison de 2 niveaux. Elle dispose de quatre chambres, d'une cuisine et de deux salles de bains. Cette maison est neuve.
Le terrain du bien s'étend sur 707 m².
Des écoles maternelles et élémentaires sont implantées dans le quartier. Côté transports en commun, il y a cinq gares à moins de 10 minutes en voiture. Les autoroutes A13 et A154 sont accessibles à moins de 9 km. On trouve un tennis, un commerce, une boulangerie, une boucherie-charcuterie et un bureau de poste à proximité.
Son prix de vente est de 411 669 €.
Contactez Karen DELELIS (tél : 07-49-97-72-93) pour toute information sur la propriété ou sur les modalités de vente. Maisons Balency Gravigny vous accompagne dans toutes vos démarches et dans tous vos projets immobiliers.

Annonce proposée par un Agent Commercial Partenaire.

Mentions légales

Terrain proposé par un partenaire foncier selon disponibilités et autorisation de publicité au prix de 86 500 €. Hors droit d'enregistrement et frais de notaire. Terrain + Maison proposés au prix de 411 669 € (Hors branchements et raccordements, papiers peints, peintures, revêtement de sol dans les chambres. Tarif modifiable sans préavis). Etiquette énergie : A. Différents modèles disponibles pour ce terrain. Assurances et garanties du constructeur (RC professionnelle, décennale, dommage ouvrage, garantie de remboursement de l'acompte, livraison à prix et délai convenu) : https://www.maisons-balency.fr/informations-legales/. HEXAOM Services est enregistré auprès de l'ORIAS en tant que Courtier en financement, Niveau 1, sous le numéro 14001345.

Contactez l'agence de Gravigny

02 32 51 49 29

    * Champs obligatoires

    Vos informations sont traitées par HEXAOM et transmises à un conseiller commercial qui vous contactera afin de répondre à votre demande. Les plans et images présentés sur notre site sont la propriété d’HEXAOM et ne peuvent pas être reproduits sans son accord. Pour retrouver notre politique de protection des données personnelles et exercer vos droits conformément à la « loi informatique et liberté » cliquez-ici.