Maison neuve à
Igoville (27460) Référence : ED2402240_1

Prix du projet : Maison avec Terrain

prix 392 752 €

  • 8 pièces
  • 5 chambres
  • Surface maison 145 m2

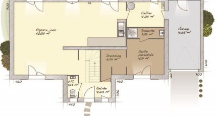
A construire sur la commune d'Igoville, une belle maison aux lignes traditionnelles (145 m²).
PROCHE DE ROUEN.
A moins de 10min de Tourville-la-Rivière, nous vous proposons ce projet maison de 8 pièces de 145 m² sur un terrain de 703 m² dans un quartier calme situé sur la commune d'Igoville (27460).
Il s'agit d'une maison de 2 niveaux. Elle est composée de cinq chambres, une cuisine et de trois salles de bains.

Il y a une école primaire, une boulangerie et plusieurs autres commerces à proximité.
Les autoroutes A13 et A154 sont accessibles à moins de 9 km, ainsi que plusieurs gares pour les transports en commun.

Ce projet maison + terrain est proposée à l'achat pour 392 752 €.

Contactez notre agence Maisons Balency Gravigny, pour plus de renseignements.
Notre conseillère commerciale Élodie DUPRÉ (07-43-61-26-52) sera ravie de vous répondre.

Donnez vie à vos projets immobiliers avec Maisons Balency Gravigny.

Annonce proposée par un Agent Commercial Partenaire.

Mentions légales

Terrain proposé par un partenaire foncier selon disponibilités et autorisation de publicité au prix de 102 500 €. Hors droit d'enregistrement et frais de notaire. Terrain + Maison proposés au prix de 290 252 € (Hors branchements et raccordements, papiers peints, peintures, revêtement de sol dans les chambres. Tarif modifiable sans préavis). Etiquette énergie : A. Différents modèles disponibles pour ce terrain. Assurances et garanties du constructeur (RC professionnelle, décennale, dommage ouvrage, garantie de remboursement de l'acompte, livraison à prix et délai convenu) : https://www.maisons-balency.fr/informations-legales/. HEXAOM Services est enregistré auprès de l'ORIAS en tant que Courtier en financement, Niveau 1, sous le numéro 14001345.

Contactez l'agence de Gravigny

02 32 51 49 29

    * Champs obligatoires

    Vos informations sont traitées par HEXAOM et transmises à un conseiller commercial qui vous contactera afin de répondre à votre demande. Les plans et images présentés sur notre site sont la propriété d’HEXAOM et ne peuvent pas être reproduits sans son accord. Pour retrouver notre politique de protection des données personnelles et exercer vos droits conformément à la « loi informatique et liberté » cliquez-ici.