Maison neuve à
Incarville (27400) Référence : ED2452515_1

Prix du projet : Maison avec Terrain

prix 236 286 €

  • 6 pièces
  • 4 chambres
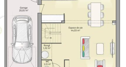
  • Surface maison 91 m2

A faire construire, cette jolie maison T6 (91 m²) à Incarville
MAISON 6 PIÈCES - PROCHE DE ROUEN
À 21 km de Rouen, votre agence Maisons Balency Gravigny est heureuse de vous proposer à Incarville (27400), cette maison de 6 pièces de 91 m² et de 523 m² de terrain. Elle comporte quatre chambres, une cuisine et une salle de bains.
Il s'agit d'une maison de 2 niveaux.
Une école primaire est implantée dans le quartier. Niveau transports, il y a trois gares (Saint-Pierre-du-Vauvray, Val-de-Reuil et Pont-de-l'Arche) à moins de 10 minutes en voiture. On trouve un tennis, plusieurs commerces et deux épiceries à quelques minutes à peine.
Ce projet maison + terrain est proposée à l'achat pour 236 286 €.
N'hésitez pas à prendre contact avec notre agence (Elodie DUPRE : 07-43-61-26-52) pour toute information sur cette maison ou sur les démarches à suivre. Maisons Balency Gravigny est là pour vous accompagner à toutes les étapes de l'achat.

Annonce proposée par un Agent Commercial Partenaire.

Mentions légales

Terrain proposé par un partenaire foncier selon disponibilités et autorisation de publicité au prix de 73 000 €. Hors droit d'enregistrement et frais de notaire. Terrain + Maison proposés au prix de 236 286 € (Hors branchements et raccordements, papiers peints, peintures, revêtement de sol dans les chambres. Tarif modifiable sans préavis). Etiquette énergie : A. Différents modèles disponibles pour ce terrain. Assurances et garanties du constructeur (RC professionnelle, décennale, dommage ouvrage, garantie de remboursement de l'acompte, livraison à prix et délai convenu) : https://www.maisons-balency.fr/informations-legales/. HEXAOM Services est enregistré auprès de l'ORIAS en tant que Courtier en financement, Niveau 1, sous le numéro 14001345.

Contactez l'agence de Gravigny

02 32 51 49 29

    * Champs obligatoires

    Vos informations sont traitées par HEXAOM et transmises à un conseiller commercial qui vous contactera afin de répondre à votre demande. Les plans et images présentés sur notre site sont la propriété d’HEXAOM et ne peuvent pas être reproduits sans son accord. Pour retrouver notre politique de protection des données personnelles et exercer vos droits conformément à la « loi informatique et liberté » cliquez-ici.