Maison neuve à
Incarville (27400) Référence : RC2455938_3

Prix du projet : Maison avec Terrain

prix 290 427 €

  • 6 pièces
  • 4 chambres
  • Surface maison 117 m2

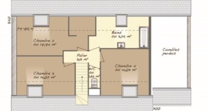
Maison T6 (117 m²) à construire à Incarville
IDÉALEMENT SITUÉE - MAISON 6 PIÈCES NEUVE
En vente à deux pas de Rouen, notre agence Maisons Balency Boos est ravie de vous présenter, idéalement située dans Incarville (27400), cette maison de 6 pièces de plain-pied de 117 m² et de 523 m² de terrain.
Elle comporte quatre chambres, une cuisine et deux salles de bains. La maison est neuve.
Cette maison se trouve dans un quartier prisé. On y trouve une école primaire. Côté transports, il y a trois gares (Saint-Pierre-du-Vauvray, Val-de-Reuil et Pont-de-l'Arche) à moins de 10 minutes en voiture. Il y a un accès à l'autoroute A154 à 1 km. On trouve un tennis, plusieurs commerces et deux épiceries à quelques minutes.
Son prix de vente est de 290 427 €.
Contactez Célia RENIER (07-62-90-87-77) pour toute information sur le bien ou sur les démarches à suivre.

Annonce proposée par un Agent Commercial Partenaire.

Mentions légales

Terrain proposé par un partenaire foncier selon disponibilités et autorisation de publicité au prix de 73 000 €. Hors droit d'enregistrement et frais de notaire. Terrain + Maison proposés au prix de 290 427 € (Hors branchements et raccordements, papiers peints, peintures, revêtement de sol dans les chambres. Tarif modifiable sans préavis). Etiquette énergie : A. Différents modèles disponibles pour ce terrain. Assurances et garanties du constructeur (RC professionnelle, décennale, dommage ouvrage, garantie de remboursement de l'acompte, livraison à prix et délai convenu) : https://www.maisons-balency.fr/informations-legales/. HEXAOM Services est enregistré auprès de l'ORIAS en tant que Courtier en financement, Niveau 1, sous le numéro 14001345.

Contactez l'agence de Boos

02 35 80 66 66

    * Champs obligatoires

    Vos informations sont traitées par HEXAOM et transmises à un conseiller commercial qui vous contactera afin de répondre à votre demande. Les plans et images présentés sur notre site sont la propriété d’HEXAOM et ne peuvent pas être reproduits sans son accord. Pour retrouver notre politique de protection des données personnelles et exercer vos droits conformément à la « loi informatique et liberté » cliquez-ici.