Maison neuve à
Iville (27110) Référence : SH2393741_2

Prix du projet : Maison avec Terrain

prix 345 000 €

  • 8 pièces
  • 5 chambres
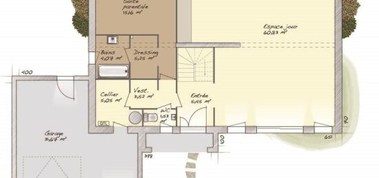
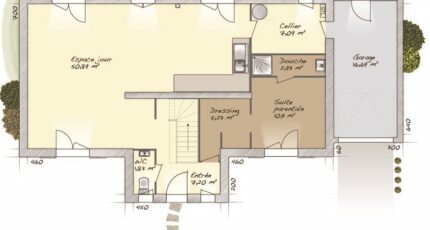
  • Surface maison 145 m2

Iville : maison T8 (145 m²) à vendre
IDÉALEMENT SITUÉE - MAISON 8 PIÈCES NEUVE
En vente : située à 24 km d'Évreux, idéalement située dans Iville (27110), nous sommes ravis de vous présenter cette maison de 8 pièces de 145 m². Elle inclut cinq chambres, une cuisine et trois salles de bains.
Le terrain du bien s'étend sur 1 000 m².
Cette maison possède 2 niveaux. Elle est neuve.
Cette maison est située dans un quartier prisé. On y trouve une école primaire. Les autoroutes A28, A154 et A13 et les nationales N154, N13 et N138 sont accessibles à moins de 20 km.
Son prix de vente est de 345 000 €.
Contactez Sébastien HOTTE (tél : 06-15-58-21-40) pour obtenir de plus amples renseignements sur la maison, sur les démarches à suivre ou sur les modalités de vente.

Annonce proposée par un Agent Commercial Partenaire.

Mentions légales

Terrain proposé par un partenaire foncier selon disponibilités et autorisation de publicité au prix de 49 000 €. Hors droit d'enregistrement et frais de notaire. Terrain + Maison proposés au prix de 345 000 € (Hors branchements et raccordements, papiers peints, peintures, revêtement de sol dans les chambres. Tarif modifiable sans préavis). Etiquette énergie : A. Différents modèles disponibles pour ce terrain. Assurances et garanties du constructeur (RC professionnelle, décennale, dommage ouvrage, garantie de remboursement de l'acompte, livraison à prix et délai convenu) : https://www.maisons-balency.fr/informations-legales/. HEXAOM Services est enregistré auprès de l'ORIAS en tant que Courtier en financement, Niveau 1, sous le numéro 14001345.

Contactez l'agence de Louviers

02 32 51 43 53

    * Champs obligatoires

    Vos informations sont traitées par HEXAOM et transmises à un conseiller commercial qui vous contactera afin de répondre à votre demande. Les plans et images présentés sur notre site sont la propriété d’HEXAOM et ne peuvent pas être reproduits sans son accord. Pour retrouver notre politique de protection des données personnelles et exercer vos droits conformément à la « loi informatique et liberté » cliquez-ici.