Maison neuve à
Iville (27110) Référence : KG2452283_4

Prix du projet : Maison avec Terrain

prix 322 000 €

  • 6 pièces
  • 3 chambres
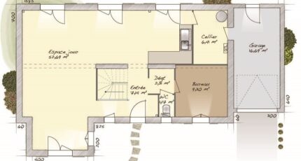
  • Surface maison 133 m2

Maison F6 (133 m²) à vendre à Iville
MAISON 6 PIÈCES NEUVE - PROCHE D'ÉVREUX
Maison à étage sous combles aménagés de 133m² habitables. Jolie surface qui se compose d'une grande pièce de vie lumineuse avec cuisine ouverte, un cellier donnant sur le garage, une entrée fermée avec un WC indépendant et des rangements, ainsi qu'un bureau au RDC. A l'étage, vous trouverez 3 chambres spacieuses, dont une suite parentale avec dressing et salle d'eau privative. Une seconde salle de bain pour rendre le tout plus fonctionnel et un 2nd WC séparé.
La maison dispose de nombreuses prestations de qualité, de finitions soignées, un grand confort avec son chauffage par pompe à chaleur, de jolies menuiseries en alu, volets roulants électriques et centralisés... toutes ces options qui rendent la vie agréable sont à découvrir avec ce modèle.
Contactez rapidement Karen GOHIER des Maisons Balency de LOUVIERS au 06 71 52 61 13 pour plus de renseignement sur cette maison, ou pour toute autre demande concernant votre projet de construction.

Annonce proposée par un Agent Commercial Partenaire.

Mentions légales

Terrain proposé par un partenaire foncier selon disponibilités et autorisation de publicité au prix de 59 000 €. Hors droit d'enregistrement et frais de notaire. Terrain + Maison proposés au prix de 322 000 € (Hors branchements et raccordements, papiers peints, peintures, revêtement de sol dans les chambres. Tarif modifiable sans préavis). Etiquette énergie : A. Différents modèles disponibles pour ce terrain. Assurances et garanties du constructeur (RC professionnelle, décennale, dommage ouvrage, garantie de remboursement de l'acompte, livraison à prix et délai convenu) : https://www.maisons-balency.fr/informations-legales/. HEXAOM Services est enregistré auprès de l'ORIAS en tant que Courtier en financement, Niveau 1, sous le numéro 14001345.

Contactez l'agence de Louviers

02 32 51 43 53

    * Champs obligatoires

    Vos informations sont traitées par HEXAOM et transmises à un conseiller commercial qui vous contactera afin de répondre à votre demande. Les plans et images présentés sur notre site sont la propriété d’HEXAOM et ne peuvent pas être reproduits sans son accord. Pour retrouver notre politique de protection des données personnelles et exercer vos droits conformément à la « loi informatique et liberté » cliquez-ici.