Maison neuve à
Jouy-le-Moutier
(95280) Référence :
MU2304251_6
Prix du projet : Maison avec Terrain
prix 320 000 €
- 5 pièces
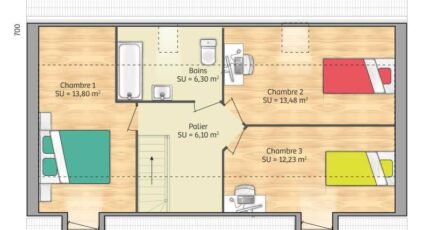
- 3 chambres
- Surface maison 80 m2
VENTE d'une maison de 5 pièces (80 m²) à Jouy-le-Moutier
IDÉALEMENT SITUÉE - MAISON 5 PIÈCES NEUVE
En vente : au pied de la gare de Maurecourt (Paris à 25 min avec le Transilien J), laissez vous charmer par cette maison de 5 pièces de 80 m² idéalement située dans Jouy-le-Moutier (95280).
C'est une maison de 2 niveaux. Elle est composée de trois chambres, d'une cuisine et d'une salle de bains. La maison est neuve.
Le terrain de la propriété est de 582 m².
Cette maison se situe dans un secteur attractif. Tous les types d'établissements scolaires (maternelle, élémentaire et secondaire) se trouvent à moins de 10 minutes à pied. Côté transports en commun, il y a les lignes A et C du RER ainsi que 32 gares à moins de 10 minutes en voiture. On trouve quatre tennis, une bibliothèque, un bassin de natation, des commerces, trois boulangeries, un supermarché, une épicerie et une boucherie-charcuterie dans les environs.
Elle est à vendre pour la somme de 320 000 €.
N'hésitez pas à prendre contact avec notre agence (URBANSKY Mylann : 06-23-32-28-23) pour toute information sur la maison ou sur les démarches à suivre. Maisons Balency Baillet-en-France est là pour vous accompagner dans tous vos projets immobiliers.
Annonce proposée par un Agent Commercial Partenaire.
Mentions légales
Terrain proposé par un partenaire foncier selon disponibilités et autorisation de publicité au prix de 170 000 €. Hors droit d'enregistrement et frais de notaire. Maison proposée, avec un contrat de construction de maison individuelle, dans le cadre de la loi du 19/12/1990, au prix de 150 000 € (Hors branchements et raccordements, papiers peints, peintures, revêtement de sol dans les chambres, qui sont chiffrés dans les travaux qui restent à charge du client. Tarif modifiable sans préavis). Étiquette énergie : A. Différents modèles disponibles pour ce terrain. Assurances et garanties du constructeur comprises (RC professionnelle, décennale, dommage ouvrage).Agence Maisons Balency de Baillet-en-France (95560)
- Téléphone :
- 01 34 46 05 23
- Adressse :
- 81 rue de Paris
95560 Baillet-en-France, France
