Maison neuve à
Jumelles (27220) Référence : KD2375615_1

Prix du projet : Maison avec Terrain

prix 321 310 €

  • 5 pièces
  • 3 chambres
  • Surface maison 120 m2

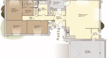
Maison T5 (120 m²) à vendre à Jumelles
PROCHE D'ÉVREUX - MAISON 5 PIÈCES NEUVE
À deux pas d'Évreux, en vente à Jumelles (27220), votre agence Maisons Balency Gravigny est heureuse de vous proposer cette maison de 5 pièces de plain-pied de 120 m².
Elle inclut trois chambres, une cuisine et deux salles de bains. La maison est neuve.
Le terrain du bien est de 565 m².
On trouve plusieurs écoles (maternelle, élémentaire, primaire et collège) à moins de 10 minutes en voiture. Les nationales N154 et N13 sont accessibles à moins de 10 km. Il y a des tennis, une bibliothèque, des commerces, trois supermarchés, des boulangeries, trois boucheries-charcuteries et trois supérettes à proximité. Ne manquez pas le marché Place Gambetta chaque vendredi matin.
Elle est proposée à l'achat pour 321 310 €.
Contactez notre agence (DELELIS Karen : 07-49-97-72-93) pour tout renseignement sur la maison.

Annonce proposée par un Agent Commercial Partenaire.

Mentions légales

Terrain proposé par un partenaire foncier selon disponibilités et autorisation de publicité au prix de 49 900 €. Hors droit d'enregistrement et frais de notaire. Terrain + Maison proposés au prix de 321 310 € (Hors branchements et raccordements, papiers peints, peintures, revêtement de sol dans les chambres. Tarif modifiable sans préavis). Etiquette énergie : A. Différents modèles disponibles pour ce terrain. Assurances et garanties du constructeur (RC professionnelle, décennale, dommage ouvrage, garantie de remboursement de l'acompte, livraison à prix et délai convenu) : https://www.maisons-balency.fr/informations-legales/. HEXAOM Services est enregistré auprès de l'ORIAS en tant que Courtier en financement, Niveau 1, sous le numéro 14001345.

Contactez l'agence de Gravigny

02 32 51 49 29

    * Champs obligatoires

    Vos informations sont traitées par HEXAOM et transmises à un conseiller commercial qui vous contactera afin de répondre à votre demande. Les plans et images présentés sur notre site sont la propriété d’HEXAOM et ne peuvent pas être reproduits sans son accord. Pour retrouver notre politique de protection des données personnelles et exercer vos droits conformément à la « loi informatique et liberté » cliquez-ici.