Maison neuve à
Jumelles (27220) Référence : ED2414783_1

Prix du projet : Maison avec Terrain

prix 209 875 €

  • 6 pièces
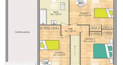
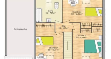
  • 4 chambres
  • Surface maison 89 m2

A construire sur la commune de Jumelles, une jolie maison de 5 pièces et 89 m² habitable.
PROCHE D'ÉVREUX.

Nous vous proposons ce projet maison 89 m² sur un terrain de 565 m² sur la commune de Jumelles (27220).
Conçue sur 2 niveaux, elle dispose de quatre chambres, d'une cuisine et d'une salle de bains.

A 5 min de Saint André avec toutes les commodités, commerces, écoles maternelle et collège, ce terrain est proche des grands axes comme la N154 et N13.
Le marché Place Gambetta a lieu chaque vendredi matin.

Ce projet maison + terrain est proposée à l'achat pour 209 875 €.

Contactez notre agence Maisons Balency Gravigny, pour plus de renseignements.
Notre conseillère commerciale Élodie DUPRÉ (07-43-61-26-52) sera ravie de vous répondre.

Donnez vie à vos projets immobiliers avec Maisons Balency Gravigny.

Annonce proposée par un Agent Commercial Partenaire.

Mentions légales

Terrain proposé par un partenaire foncier selon disponibilités et autorisation de publicité au prix de 49 900 €. Hors droit d'enregistrement et frais de notaire. Terrain + Maison proposés au prix de 159 975 € (Hors branchements et raccordements, papiers peints, peintures, revêtement de sol dans les chambres. Tarif modifiable sans préavis). Etiquette énergie : A. Différents modèles disponibles pour ce terrain. Assurances et garanties du constructeur (RC professionnelle, décennale, dommage ouvrage, garantie de remboursement de l'acompte, livraison à prix et délai convenu) : https://www.maisons-balency.fr/informations-legales/. HEXAOM Services est enregistré auprès de l'ORIAS en tant que Courtier en financement, Niveau 1, sous le numéro 14001345.

Contactez l'agence de Gravigny

02 32 51 49 29

    * Champs obligatoires

    Vos informations sont traitées par HEXAOM et transmises à un conseiller commercial qui vous contactera afin de répondre à votre demande. Les plans et images présentés sur notre site sont la propriété d’HEXAOM et ne peuvent pas être reproduits sans son accord. Pour retrouver notre politique de protection des données personnelles et exercer vos droits conformément à la « loi informatique et liberté » cliquez-ici.