Maison neuve à
La Chapelle-du-Bois-des-Faulx (27930) Référence : ED2415948_1

Prix du projet : Maison avec Terrain

prix 212 690 €

  • 4 pièces
  • 2 chambres
  • Surface maison 70 m2

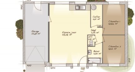
A construire sur la commune de La Chapelle-du-Bois-des-Faulx, cette jolie Maison T6 (70 m²).
PROCHE D'ÉVREUX.

Dans un secteur recherché, à quelques kilomètres d'Évreux, notre agence Maisons Balency Gravigny est ravie de vous présenter cette maison de 4 pièces de 70 m² habitable sur un terrain de 363 m² à La Chapelle-du-Bois-des-Faulx (27930).
Conçue de plain-pied, elle propose deux chambres, une cuisine et une salle de bains.

Proche de l'École Élémentaire Jules Ferry à moins de 10 minutes.
Les autoroutes A154 et A13 et les nationales N154 et N13 sont également accessibles à moins de 10 km.

Ce projet maison + terrain est proposée à l'achat pour 212 690 €.

Contactez notre agence Maisons Balency Gravigny, pour plus de renseignements.
Notre conseillère commerciale Élodie DUPRÉ (07-43-61-26-52) sera ravie de vous répondre.

Donnez vie à vos projets immobiliers avec Maisons Balency Gravigny.

Annonce proposée par un Agent Commercial Partenaire.

Mentions légales

Terrain proposé par un partenaire foncier selon disponibilités et autorisation de publicité au prix de 55 000 €. Hors droit d'enregistrement et frais de notaire. Terrain + Maison proposés au prix de 157 690 € (Hors branchements et raccordements, papiers peints, peintures, revêtement de sol dans les chambres. Tarif modifiable sans préavis). Etiquette énergie : A. Différents modèles disponibles pour ce terrain. Assurances et garanties du constructeur (RC professionnelle, décennale, dommage ouvrage, garantie de remboursement de l'acompte, livraison à prix et délai convenu) : https://www.maisons-balency.fr/informations-legales/. HEXAOM Services est enregistré auprès de l'ORIAS en tant que Courtier en financement, Niveau 1, sous le numéro 14001345.

Contactez l'agence de Gravigny

02 32 51 49 29

    * Champs obligatoires

    Vos informations sont traitées par HEXAOM et transmises à un conseiller commercial qui vous contactera afin de répondre à votre demande. Les plans et images présentés sur notre site sont la propriété d’HEXAOM et ne peuvent pas être reproduits sans son accord. Pour retrouver notre politique de protection des données personnelles et exercer vos droits conformément à la « loi informatique et liberté » cliquez-ici.