Maison neuve à
La Couture-Boussey (27750) Référence : FG2420509_2

Prix du projet : Maison avec Terrain

prix 141 315 €

  • 4 pièces
  • 2 chambres
  • Surface maison 60 m2

La Couture-Boussey : maison de 4 pièces (60 m²) à vendre
IDÉALEMENT SITUÉE - MAISON 4 PIÈCES NEUVE
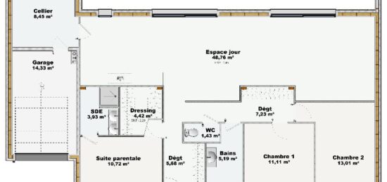
Découvrez à vendre, cette maison de 4 pièces de plain-pied de 60 m².
Elle est composée de deux chambres, d'une cuisine ouverte sur l'espace de vie et d'une salle de bains. Cette maison est neuve.
Le terrain du bien est de 422 m².
La maison se trouve dans un quartier recherché.

Elle est proposée à l'achat pour 141 315 €.
Contactez Fanny GATINAULT (06-34-03-24-37) pour toute information sur la propriété, sur les modalités de vente et sur les démarches à suivre.

Annonce proposée par un Agent Commercial Partenaire.

Mentions légales

Terrain proposé par un partenaire foncier selon disponibilités et autorisation de publicité au prix de 37 000 €. Hors droit d'enregistrement et frais de notaire. Terrain + Maison proposés au prix de 141 315 € (Hors branchements et raccordements, papiers peints, peintures, revêtement de sol dans les chambres. Tarif modifiable sans préavis). Etiquette énergie : A. Différents modèles disponibles pour ce terrain. Assurances et garanties du constructeur (RC professionnelle, décennale, dommage ouvrage, garantie de remboursement de l'acompte, livraison à prix et délai convenu) : https://www.maisons-balency.fr/informations-legales/. HEXAOM Services est enregistré auprès de l'ORIAS en tant que Courtier en financement, Niveau 1, sous le numéro 14001345.

Contactez l'agence de Louviers

02 32 51 43 53

    * Champs obligatoires

    Vos informations sont traitées par HEXAOM et transmises à un conseiller commercial qui vous contactera afin de répondre à votre demande. Les plans et images présentés sur notre site sont la propriété d’HEXAOM et ne peuvent pas être reproduits sans son accord. Pour retrouver notre politique de protection des données personnelles et exercer vos droits conformément à la « loi informatique et liberté » cliquez-ici.