Maison neuve à
La Haye-Malherbe (27400) Référence : SEMA9009_1

Prix du projet : Maison avec Terrain

prix 164 000 €

  • 4 pièces
  • 2 chambres
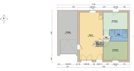
  • Surface maison 50 m2

Maison F4 (49 m²) à vendre à La Haye-Malherbe
MAISON 4 PIÈCES NEUVE - PROCHE DE ROUEN
À vendre : à quelques kilomètres de Rouen, votre agence Maisons Balency Boos est heureuse de vous présenter cette maison de 4 pièces de plain-pied de 49 m² à La Haye-Malherbe (27400).
Son intérieur offre deux chambres, une cuisine et une salle de bains. Cette maison est neuve.
Le terrain du bien s'étend sur 500 m².
Il y a l'École Primaire le Village à moins de 10 minutes à pied. Niveau transports en commun, on trouve la gare Elbeuf-Saint-Aubin à moins de 10 minutes en voiture. Les autoroutes A13 et A154 et la nationale N154 sont accessibles à moins de 9 km. Il y a trois commerces, une boulangerie, une boucherie-charcuterie, une épicerie et un bureau de poste à proximité de la maison.
Elle est proposée à l'achat pour 164 000 €.
Contactez notre constructeur (Sébastien MASSON : 06-23-38-14-17) pour toute information sur cette maison ou sur les démarches à suivre. Maisons Balency Boos est là pour vous accompagner dans tous vos projets immobiliers.

Annonce proposée par un Agent Commercial Partenaire.

Mentions légales

Terrain proposé par un partenaire foncier selon disponibilités et autorisation de publicité au prix de 59 000 €. Hors droit d'enregistrement et frais de notaire. Terrain + Maison proposés au prix de 105 000 € (Hors branchements et raccordements, papiers peints, peintures, revêtement de sol dans les chambres. Tarif modifiable sans préavis). Etiquette énergie : A. Différents modèles disponibles pour ce terrain. Assurances et garanties du constructeur (RC professionnelle, décennale, dommage ouvrage, garantie de remboursement de l'acompte, livraison à prix et délai convenu) : https://www.maisons-balency.fr/informations-legales/. HEXAOM Services est enregistré auprès de l'ORIAS en tant que Courtier en financement, Niveau 1, sous le numéro 14001345.

Contactez l'agence de Boos

02 35 80 66 66

    * Champs obligatoires

    Vos informations sont traitées par HEXAOM et transmises à un conseiller commercial qui vous contactera afin de répondre à votre demande. Les plans et images présentés sur notre site sont la propriété d’HEXAOM et ne peuvent pas être reproduits sans son accord. Pour retrouver notre politique de protection des données personnelles et exercer vos droits conformément à la « loi informatique et liberté » cliquez-ici.