Maison neuve à
La Saussaye (27370) Référence : FG2444601_1

Prix du projet : Maison avec Terrain

prix 427 737 €

  • 8 pièces
  • 5 chambres
  • Surface maison 145 m2

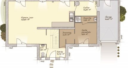
La Saussaye : maison F8 (145 m²) en vente
EMPLACEMENT PRIVILÉGIÉ - MAISON 8 PIÈCES NEUVE
À deux pas de Rouen, nous sommes heureux de vous proposer cette maison de 8 pièces de 145 m² à vendre bénéficiant d'un emplacement d'exception dans La Saussaye (27370). Elle comporte cinq chambres dont une suite parentale, une cuisine ouverte sur l'espace de vie, un cellier donnant sur le garage et trois salles de bains.
Le terrain de la propriété s'étend sur 1 589 m².
Cette maison possède 2 niveaux. Elle est neuve.
Cette maison se situe dans un quartier attractif.

Son prix de vente est de 427 737 €.
Contactez Fanny GATINAULT (06-34-03-24-37) pour tout renseignement sur la maison, sur les modalités de vente ou sur les démarches à suivre. Maisons Balency Louviers est là pour vous accompagner dans tous vos projets immobiliers.

Annonce proposée par un Agent Commercial Partenaire.

Mentions légales

Terrain proposé par un partenaire foncier selon disponibilités et autorisation de publicité au prix de 136 500 €. Hors droit d'enregistrement et frais de notaire. Terrain + Maison proposés au prix de 427 737 € (Hors branchements et raccordements, papiers peints, peintures, revêtement de sol dans les chambres. Tarif modifiable sans préavis). Etiquette énergie : A. Différents modèles disponibles pour ce terrain. Assurances et garanties du constructeur (RC professionnelle, décennale, dommage ouvrage, garantie de remboursement de l'acompte, livraison à prix et délai convenu) : https://www.maisons-balency.fr/informations-legales/. HEXAOM Services est enregistré auprès de l'ORIAS en tant que Courtier en financement, Niveau 1, sous le numéro 14001345.

Contactez l'agence de Louviers

02 32 51 43 53

    * Champs obligatoires

    Vos informations sont traitées par HEXAOM et transmises à un conseiller commercial qui vous contactera afin de répondre à votre demande. Les plans et images présentés sur notre site sont la propriété d’HEXAOM et ne peuvent pas être reproduits sans son accord. Pour retrouver notre politique de protection des données personnelles et exercer vos droits conformément à la « loi informatique et liberté » cliquez-ici.