Maison neuve à
La Vieux-Rue (76160) Référence : SEMA9020_6

Prix du projet : Maison avec Terrain

prix 263 000 €

  • 9 pièces
  • 5 chambres
  • Surface maison 124 m2

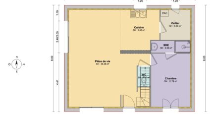
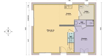
La Vieux-Rue : maison de 9 pièces (124 m²) à vendre
MAISON 9 PIÈCES NEUVE - PROCHE DE ROUEN
À vendre : à deux pas de Rouen, votre agence Maisons Balency Boos est heureuse de vous présenter cette maison de 9 pièces de 124 m² et de 500 m² de terrain à La Vieux-Rue (76160).
Il s'agit d'une maison de 2 niveaux. Son intérieur propose cinq chambres, une cuisine et trois salles de bains. La maison est neuve.
L'École Primaire Marie Bigot se trouve à moins de 10 minutes à pied. Niveau transports, il y a les gares Morgny-la-Pommeraye, Saint-Martin-du-Vivier et Longuerue-Vieux-Manoir à moins de 10 minutes en voiture. L'autoroute A28 et la nationale N28 sont accessibles à moins de 8 km. On trouve une bibliothèque et un tennis à quelques minutes du logement.
Elle est à vendre pour la somme de 263 000 €.
Contactez notre agence (MASSON Sébastien : 06-23-38-14-17) pour toute question sur cette maison, sur les modalités de vente ou sur les démarches à suivre. Maisons Balency Boos vous accompagne à toutes les étapes de votre projet et dans tous vos projets immobiliers.

Annonce proposée par un Agent Commercial Partenaire.

Mentions légales

Terrain proposé par un partenaire foncier selon disponibilités et autorisation de publicité au prix de 69 000 €. Hors droit d'enregistrement et frais de notaire. Maison proposée, avec un contrat de construction de maison individuelle, dans le cadre de la loi du 19/12/1990, au prix de 194 000 € (Hors branchements et raccordements, papiers peints, peintures, revêtement de sol dans les chambres, qui sont chiffrés dans les travaux qui restent à charge du client. Tarif modifiable sans préavis). Étiquette énergie : A. Différents modèles disponibles pour ce terrain. Assurances et garanties du constructeur comprises (RC professionnelle, décennale, dommage ouvrage).

Contactez l'agence de Boos

02 35 80 66 66

    * Champs obligatoires

    Vos informations sont traitées par HEXAOM et transmises à un conseiller commercial qui vous contactera afin de répondre à votre demande. Les plans et images présentés sur notre site sont la propriété d’HEXAOM et ne peuvent pas être reproduits sans son accord. Pour retrouver notre politique de protection des données personnelles et exercer vos droits conformément à la « loi informatique et liberté » cliquez-ici.