Maison neuve à
Labosse
(60590) Référence :
AF2327887_3
Prix du projet : Maison avec Terrain
prix 260 000 €
- 6 pièces
- 4 chambres
- Surface maison 105 m2
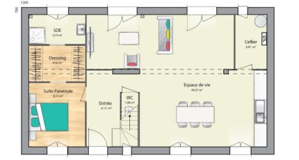
VENTE d'une maison de 6 pièces (105 m²) à Labosse
PROCHE DE BEAUVAIS - MAISON 6 PIÈCES NEUVE
À vendre : à côté du Transilien J (gare de Trie-Château, 1 h de Paris), découvrez à Labosse (60590), cette maison de 6 pièces de 105 m² et de 850 m² de terrain.
C'est une maison de 2 niveaux. Son intérieur inclut quatre chambres, une cuisine et deux salles de bains. La maison est neuve.
Niveau transports en commun, il y a les gares Trie-Château, Chaumont-en-Vexin et Sérifontaine à moins de 10 minutes en voiture. La nationale N31 est accessible à 10 km et Beauvais se situe à 17 km. On trouve une bibliothèque à proximité du bien.
Elle est à vendre pour la somme de 260 000 €.
Contactez Antoine FLIPPE (tél : 07-82-59-37-75) pour tout renseignement sur cette propriété, sur les modalités de vente ou sur les démarches à suivre.
Annonce proposée par un Agent Commercial Partenaire.
Mentions légales
Terrain proposé par un partenaire foncier selon disponibilités et autorisation de publicité au prix de 60 000 €. Hors droit d'enregistrement et frais de notaire. Maison proposée, avec un contrat de construction de maison individuelle, dans le cadre de la loi du 19/12/1990, au prix de 200 000 € (Hors branchements et raccordements, papiers peints, peintures, revêtement de sol dans les chambres, qui sont chiffrés dans les travaux qui restent à charge du client. Tarif modifiable sans préavis). Étiquette énergie : A. Différents modèles disponibles pour ce terrain. Assurances et garanties du constructeur comprises (RC professionnelle, décennale, dommage ouvrage).Agence Maisons Balency de Baillet-en-France (95560)
- Téléphone :
- 01 34 46 05 23
- Adressse :
- 81 rue de Paris
95560 Baillet-en-France, France
