Maison neuve à
Le Bec-Thomas (27370) Référence : KXA2332322_3

Prix du projet : Maison avec Terrain

prix 318 900 €

  • 5 pièces
  • 3 chambres
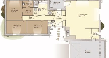
  • Surface maison 120 m2

Le Bec-Thomas : maison F5 (120 m²) en vente
MAISON 5 PIÈCES NEUVE - PROCHE DE ROUEN
En vente à 24 km de Rouen, nous vous présentons cette maison de 5 pièces de plain-pied de 120 m² et de 1 507 m² de terrain au Bec-Thomas (27370).
Conçue de plain-pied, elle compte trois chambres, une cuisine et deux salles de bains. Cette maison est neuve.
Il y a des établissements scolaires du primaire et du secondaire à moins de 10 minutes en voiture, tout comme quatre crèches à moins de 10 minutes à pied. Niveau transports, on trouve la gare Elbeuf-Saint-Aubin à moins de 10 minutes en voiture. Il y a des bibliothèques, des tennis, deux bassins de natation, des commerces, des supermarchés, des boulangeries, des boucheries-charcuteries et deux poissonneries à quelques minutes du logement. Enfin, 2 marchés animent le quartier.
Il est proposé à l'achat pour 318 900 €.
Contactez Kévin XAVIER ALVES (06-58-91-13-87) pour obtenir de plus amples renseignements sur la maison, sur les démarches à suivre ou sur les modalités de vente.

Annonce proposée par un Agent Commercial Partenaire.

Mentions légales

Terrain proposé par un partenaire foncier selon disponibilités et autorisation de publicité au prix de 68 900 €. Hors droit d'enregistrement et frais de notaire. Terrain + Maison proposés au prix de 250 000 € (Hors branchements et raccordements, papiers peints, peintures, revêtement de sol dans les chambres. Tarif modifiable sans préavis). Etiquette énergie : A. Différents modèles disponibles pour ce terrain. Assurances et garanties du constructeur (RC professionnelle, décennale, dommage ouvrage, garantie de remboursement de l'acompte, livraison à prix et délai convenu) : https://www.maisons-balency.fr/informations-legales/. HEXAOM Services est enregistré auprès de l'ORIAS en tant que Courtier en financement, Niveau 1, sous le numéro 14001345.

Contactez l'agence de Boos

02 35 80 66 66

    * Champs obligatoires

    Vos informations sont traitées par HEXAOM et transmises à un conseiller commercial qui vous contactera afin de répondre à votre demande. Les plans et images présentés sur notre site sont la propriété d’HEXAOM et ne peuvent pas être reproduits sans son accord. Pour retrouver notre politique de protection des données personnelles et exercer vos droits conformément à la « loi informatique et liberté » cliquez-ici.