Maison neuve à
Le Bec-Thomas (27370) Référence : KB2392134_4

Prix du projet : Maison avec Terrain

prix 335 000 €

  • 7 pièces
  • 5 chambres
  • Surface maison 170 m2

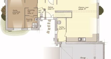
VENTE d'une maison de 7 pièces (170 m²) au Bec-Thomas
IDÉALEMENT SITUÉE - MAISON 7 PIÈCES NEUVE
À vendre : à 24 km de Rouen, découvrez cette maison de 7 pièces de plain-pied de 170 m² et de 1 150 m² de terrain, idéalement située dans Le Bec-Thomas (27370). Son intérieur propose cinq chambres, une cuisine et trois salles de bains.
La maison est neuve.
Cette maison se trouve dans un quartier convoité. Tous les types d'écoles sont implantés à moins de 10 minutes en voiture, tout comme quatre structures d'accueil pour les tout-petits à moins de 10 minutes à pied. Niveau transports en commun, il y a la gare Elbeuf-Saint-Aubin à moins de 10 minutes en voiture. On trouve des bibliothèques, des tennis, deux bassins de natation, des commerces, des supermarchés, des boulangeries, des bureaux de poste et des supérettes à quelques minutes du logement. 2 marchés animent le quartier.
Son prix de vente est de 335 000 €.
Contactez Kamel BAZIZ (tél : 07-80-36-63-82) pour obtenir de plus amples renseignements sur la propriété. Maisons Balency Boos vous accompagne dans tous vos projets immobiliers et dans toutes vos démarches.

Annonce proposée par un Agent Commercial Partenaire.

Mentions légales

Terrain proposé par un partenaire foncier selon disponibilités et autorisation de publicité au prix de 55 000 €. Hors droit d'enregistrement et frais de notaire. Terrain + Maison proposés au prix de 335 000 € (Hors branchements et raccordements, papiers peints, peintures, revêtement de sol dans les chambres. Tarif modifiable sans préavis). Etiquette énergie : A. Différents modèles disponibles pour ce terrain. Assurances et garanties du constructeur (RC professionnelle, décennale, dommage ouvrage, garantie de remboursement de l'acompte, livraison à prix et délai convenu) : https://www.maisons-balency.fr/informations-legales/. HEXAOM Services est enregistré auprès de l'ORIAS en tant que Courtier en financement, Niveau 1, sous le numéro 14001345.

Contactez l'agence de Boos

02 35 80 66 66

    * Champs obligatoires

    Vos informations sont traitées par HEXAOM et transmises à un conseiller commercial qui vous contactera afin de répondre à votre demande. Les plans et images présentés sur notre site sont la propriété d’HEXAOM et ne peuvent pas être reproduits sans son accord. Pour retrouver notre politique de protection des données personnelles et exercer vos droits conformément à la « loi informatique et liberté » cliquez-ici.