Maison neuve à
Le Bocasse (76690) Référence : RC2417001_2

Prix du projet : Maison avec Terrain

prix 233 297 €

  • 6 pièces
  • 4 chambres
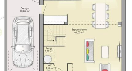
  • Surface maison 91 m2

A construire : maison F6 (91 m²) au Bocasse
IDÉALEMENT SITUÉE - MAISON 6 PIÈCES NEUVE
En vente à 36 km de la Manche et à deux pas de Rouen, idéalement située dans Le Bocasse (76690), Maisons Balency Boos vous présente cette maison de 6 pièces de 91 m². Son intérieur offre quatre chambres, une cuisine et une salle de bains.
Le terrain du bien s'étend sur 707 m².
Cette maison compte 2 niveaux. Elle est neuve.
Le bien se situe dans un quartier convoité. On trouve l'École Primaire Fertel à moins de 10 minutes à pied. Côté transports, il y a les gares Clères, Montville et Saint-Victor-l'Abbaye à moins de 10 minutes en voiture. Les autoroutes A151 et A29 et la nationale N27 sont accessibles à moins de 6 km.
Il est proposé à l'achat pour 233 297 €.
Contactez notre agence (Célia RENIER : 07-62-90-87-77) pour toute information sur la maison. Maisons Balency Boos vous accompagne à toutes les étapes de votre projet et dans tous vos projets immobiliers.

Annonce proposée par un Agent Commercial Partenaire.

Mentions légales

Terrain proposé par un partenaire foncier selon disponibilités et autorisation de publicité au prix de 58 000 €. Hors droit d'enregistrement et frais de notaire. Terrain + Maison proposés au prix de 175 297 € (Hors branchements et raccordements, papiers peints, peintures, revêtement de sol dans les chambres. Tarif modifiable sans préavis). Etiquette énergie : A. Différents modèles disponibles pour ce terrain. Assurances et garanties du constructeur (RC professionnelle, décennale, dommage ouvrage, garantie de remboursement de l'acompte, livraison à prix et délai convenu) : https://www.maisons-balency.fr/informations-legales/. HEXAOM Services est enregistré auprès de l'ORIAS en tant que Courtier en financement, Niveau 1, sous le numéro 14001345.

Contactez l'agence de Boos

02 35 80 66 66

    * Champs obligatoires

    Vos informations sont traitées par HEXAOM et transmises à un conseiller commercial qui vous contactera afin de répondre à votre demande. Les plans et images présentés sur notre site sont la propriété d’HEXAOM et ne peuvent pas être reproduits sans son accord. Pour retrouver notre politique de protection des données personnelles et exercer vos droits conformément à la « loi informatique et liberté » cliquez-ici.